The Project Gutenberg eBook of The Pennsylvania Journal of Prison Discipline and Philanthropy (Vol. IV, No. II, April 1849)

This ebook is for the use of anyone anywhere in the United States and most other parts of the world at no cost and with almost no restrictions whatsoever. You may copy it, give it away or re-use it under the terms of the Project Gutenberg License included with this ebook or online at www.gutenberg.org. If you are not located in the United States, you will have to check the laws of the country where you are located before using this eBook.

Title: The Pennsylvania Journal of Prison Discipline and Philanthropy (Vol. IV, No. II, April 1849)

Author: Philadelphia Society for Alleviating the Miseries of Public Prisons

Release date: April 3, 2018 [eBook #56908]

Language: English

Credits: Produced by Larry B. Harrison, Wayne Hammond and the Online
Distributed Proofreading Team at http://www.pgdp.net (This
book was produced from images made available by the
HathiTrust Digital Library.)

*** START OF THE PROJECT GUTENBERG EBOOK THE PENNSYLVANIA JOURNAL OF PRISON DISCIPLINE AND PHILANTHROPY (VOL. IV, NO. II, APRIL 1849) ***

43

TERMS:—ONE DOLLAR A YEAR IN ADVANCE.
THE
PENNSYLVANIA JOURNAL
OF
PRISON DISCIPLINE
AND
PHILANTHROPY.
PUBLISHED QUARTERLY

UNDER THE DIRECTION OF “THE PHILADELPHIA SOCIETY FOR ALLEVIATING
THE MISERIES OF PUBLIC PRISONS,” INSTITUTED 1787.

VOL. IV.—NO. II.
APRIL 1849.
PHILADELPHIA:
E. C. AND J. BIDDLE,
SOUTHWEST CORNER OF FIFTH AND MINOR STREETS.

44

CONTENTS OF NO. II.
Art. I.— Houses of Refuge, 49
II.— Mortality and Crime, 63
III.— State Penitentiaries, 70
NOTICES.
No. 1.— Institutions for the Insane, 79
2.— The precise present character of transportation explained, with suggestions by Ignotus, 86
3.— Statistics of Truantry and of Juvenile Vagrancy in the City of Boston, 88
4.— The London Christian Observer’s notice of Rev. Mr. Field’s work on the Advantages of the Separate System of Imprisonment, 92
5.— Kentucky State Penitentiary, 93
6.— An Inquiry into the Alleged Tendency of the Separation of Convicts,
one from the other, to Produce Disease and Derangement,
94
7.— New York Eye and Ear Infirmary, 95
8.— Shelter for Colored Orphans, 95
9.— Paupers and Prisoners in Cincinnati, 95
10.— Insane Asylum in North Carolina, 95
11.— Corrupt Police, 96

CONSTITUTION
OF THE
Philadelphia Society for Alleviating the Miseries of Public Prisons.”

When we consider that the obligations of benevolence, which are founded on the precepts and examples of the Author of Christianity, are not cancelled by the follies or crimes of our fellow-creatures: and when we reflect upon the miseries which penury, hunger, cold, unnecessary severity, unwholesome apartments, and guilt, (the usual attendants of prisons,) involve with them, it becomes us to extend our compassion to that part of mankind who are the subjects of those miseries. By the aid of humanity, their undue and illegal sufferings may be prevented; the links which should bind the whole family of mankind together, under all circumstances, be preserved unbroken; and such degrees and modes of punishment may be discovered and suggested, as may, instead of continuing habits of vice, become the means of restoring our fellow-creatures to virtue and happiness. From a conviction of the truth and obligation of these principles, the subscribers have associated themselves under the title of “The Philadelphia Society for Alleviating the Miseries of Public Prisons.”

For effecting these purposes, they have adopted the following Constitution.

Article I.—The officers of the Society shall consist of a President, two Vice-Presidents, two Secretaries, a Treasurer, two Counsellors, and an Acting Committee, all of whom, except the Acting Committee, shall be chosen annually, by ballot, on the second Second-day, called Monday, in the month called January.

(See 3d page of Cover.) 45

46

FRONT VIEW.

J. MC ARTHUR JUNR ARCHT. 47

PLAN 48 49

APRIL, 1849.
VOL IV.—NO. II.

Art. I.—HOUSES OF REFUGE.

I. Twenty-first Annual Report of the Managers of the Philadelphia House of Refuge to the Legislature and to the Contributors thereto. 1849, pp. 32.

II. Twenty-fourth Annual Report of the Managers of the Society for the Reformation of Juvenile Delinquents to the Legislature of the State and the Corporation of the City of New York. 1849, pp. 50.

We need, in some parts of the United States, a grade of penal institutions between what are called Houses of Refuge, or of Reformation for Juvenile Delinquents on the one hand, and the highest and best class of penitentiaries on the other.

As they are at present, our institutions of this class are neither schools nor prisons. They employ the inmates at labor and instruct them, as far as practicable, in the elements of useful knowledge and thus far they resemble the Industrial Schools of Europe. But they are places of close confinement—they have regulations and a police, not unlike those of a prison, and their inmates are sent thither as offenders—though juvenile offenders. The worst that can be said of some of them is, that they are incorrigible truants—of others, that they are past parental control, (and in this respect, perhaps, “more sinned against than sinning;”) but some are adroit thieves and bold burglars—some skilful forgers—some incendiaries, and some assaulters with intent to kill. Their ages, too, range from eight to sixteen or even eighteen, and their size and physical strength are equally various.

This is a motley group to bring into the relation of schoolmates or fellow-apprentices, and their care-takers must possess 50 rare endowments, so to administer discipline, as to prevent much harm from being done to some in connection with all the good they do to others. For, that they have done immeasurable good, no one who has investigated their operations and results, can for a moment doubt. They have fully justified the high anticipations which were entertained concerning them at an early period of their history. “No disciplinary institution in our country,” said the Rev. Dr. Alexander of New Jersey, “promises to effect more for society, than a House of Refuge for juvenile delinquents. If it were ever lawful to rejoice in an event produced by crime, it would be, that these unhappy youth are, by the commission of a crime, snatched from the sink of pollution in which they have been immersed, and put to regular business, and educated as well as most children in the land.”1

Having fully sustained their claim to confidence, as a system of reformatory means, we naturally desire to see them rendered as effective as possible. And to this end we would have them adhere punctiliously to the original design for which they were instituted. This was not to inflict a penalty, but to interpose a shield—not to bring suffering upon the guilty, but to supply instruction, wholesome discipline and kind offices to the neglected and exposed. They may easily be perverted by opening their doors to youth (“young in years, but old in sinning”) who are thought to require some milder discipline than the penitentiary affords, but whose offences are really as rank and as indicative of deep-seated depravity as those of the oldest and the worst.

In determining, in any given case, whether to admit or reject an applicant, the managers of a House of Refuge would be governed, we presume, chiefly by the character, though in some degree by the size and physical strength of the individual, as a subject of mild, parental discipline. The question, how far a residence in the institution will be likely to bring about his radical reformation and the establishment of good habits has the first place; and another, and scarcely less important question would be, what influence will his admission have on others? If he is perverse and stubborn, and at the same time 51 overgrown in size, so as require a disproportionate measure of care and vigilance, (in which case other and more hopeful subjects must be, to an equal extent, neglected,) his admission would seem inexpedient. Provision exists, or should be made for such an one elsewhere. So, also, if one is presented, deformed in body, deficient in mind, or of sickly constitution, and not likely to succeed in acquiring the knowledge of a trade, or unfitted to bear the proper discipline, he has higher claims on some other form of public charity. A House of Refuge is not meant for him, nor is it likely to benefit him.

An institution designed to keep boys and girls in due order and subordination, ought to be able to dispense with some of the more revolting appendages of a prison—such as unscaleable walls—narrow stone cells—and massive bars and bolts. We admit that all these are necessary the moment it receives a sturdy, hardened, hackneyed rogue of eighteen, sixteen or even fourteen; but it is a pity to force upon the whole establishment the gloomy appearance of a prison, rather than reject half a dozen youth of extra age and size, whom parents or friends naturally feel disposed to save from a felon’s doom.

The inquiry of chief interest, however, relates to character. What has been his career up to this time? Who have been his associates? To what species of crime has he been chiefly addicted? Has he, in the fury of unbridled passion, attempted the life of another? of his parent, or associate, or enemy? Has he deliberately forged another’s name? Has he been familiar with scenes of outrage and tumult? Is he a frequenter of the haunts of infamy? Has he good fellowship with a large circle of like characters with himself? These questions, or any of them, if answered affirmatively, would go far to turn the scale against his admission. The acts we have supposed, indicate in the perpetrator of them, a confirmed habit or propensity, which may, perhaps, be corrected; but not by the ordinary discipline of a proper House of Refuge. Nor should the attempt be made to employ it on so unpromising a subject, at the risk of introducing more evil than we can possibly hope to prevent. Indeed, it is difficult to conceive any good reason why a burglar or incendiary at sixteen, should be called a “delinquent,” and put to school, while the same grade of criminals 52 at twenty, are called convicts, and sent to the penitentiary. Age, by itself, is a very unsafe criterion by which to determine the turpitude of crime or the appropriateness of punishment.

We do not say that no cases of this class can occur, in which the admission of the party to a House of Refuge, would be expedient; but, as a general thing, we should be disposed to confine its benign influence to those whose proclivity to a criminal career is but feebly though decidedly developed; whose delinquencies exist rather in an impatience or contempt of domestic restraints, than in deliberate violations of public law. The discipline, as well as the construction of Refuge-buildings and the usual means of safe custody, evidently contemplate a very young class of boys and girls, say from eight to twelve years of age, who may be incorrigible truants, disobedient to parents, insubordinate to masters, petty thieves, street-strollers, without a home or worse,—uneducated, unaccustomed to any kind of restraint. Such youth come under the discipline of an establishment, like our Houses of Refuge, with a prospect of great advantage.

Even those who have acquired fixed habits of lying, stealing, deceit and violence, are, at this age, physically reducible to order and industry. They are incapable of using dangerous weapons with effect—they are not likely to combine for outbreaks, nor to plot escapes. With wholesome food, and an hour or two’s recreation every day, they can be made to conform to stringent regulations, without great or long continued severity of discipline. Active employment in some handicraft, daily schooling, and proper religious culture, soon work a wonderful transformation in such a class of children, and if they can only be continued long enough to make their new course of life habitual, so that to be idle shall be as irksome to them as it once was to work, and to speak the truth shall be as easy as it once was to lie, the benefit of such an institution could not be overrated.

If the discrimination we have suggested, should be faithfully observed, we should find a very large class of youth who require penal discipline of a severer type, and for whom no provision is now made except in the penitentiary, which is quite as ill adapted to meet the exigency at this point, as the 53 Refuge is at the other. We should, therefore, be disposed to take the most promising youthful inmates of the penitentiary, and the least suitable or most unpromising of the older inmates of some of the Houses of Refuge for juvenile delinquents, and provide an institution for them, that shall combine the severity of the former with the leniency of the latter. This idea is substantially embraced in the Parkhurst prison on the Isle of Wight, and is recognized to some extent in the new State Reform School at Westborough, Massachusetts.

The origin and peculiarities of these institutions, involve the vast and interesting subject of juvenile delinquency; its causes, effects and preventives, upon an investigation of which we promise ourselves some future opportunity to enter. As it is, our limits require us to pass abruptly to a few general remarks upon the present condition of our principal institutions designed for its correction.

From the twenty-first report of the Philadelphia House of Refuge, we learn, that during the year 1848, one hundred and sixty-eight inmates were received, (129 boys and 39 girls,) and 153 discharged, (116 boys, and 37 girls,) of whom, 89 were by indentures. Of the commitments, 86 were by request of parents or near friends. The average age of both sexes was a fraction over 14 years; but so far as the prospect of reformation is concerned, a girl is as old at 14 as a boy is at 18. There was only one death in the House during the year. Of the 65 boys indentured, 30 went to farmers; and of the 24 girls all were indentured to housewifery. The occupations of the inmates are, cane-chair seating, (48,) umbrella furniture, (57,) and razor-strop making, (71.) The income from the labor of boys during the year, was $5,598,88, and the total expenditures of the establishment, were $13,987,39. The principal of this institution has, at our request, furnished some valuable suggestions respecting the methods of administration and discipline, in establishments of this class, of which we gladly avail ourselves in the present connection.

He ranks classification, among the most obvious, important and difficult objects to be attained in such an institution. He admits that education, moral, intellectual, and religious, is all important; but he insists, that habits of industry and obedience, 54 should be regarded as among the first and most desirable fruits of it. The power of habit, he thus forcibly describes:

“A boy, who has been unaccustomed to obey his parents, or respect his superiors, and has been allowed to spend most of his time in idleness before he is brought to the Refuge, if kept regularly at work, and at the same time compelled to obey those who have the care of him, will, in time, become so accustomed to labor, that he will even, in some cases, prefer it to idleness, and obedience will also become habitual. But this must be a work of time. He should be kept until he is thoroughly weaned from his former indolent ways. I have known boys who have remained three or four years in our institution and who have run away from their masters soon after they were bound out, come back to the city and resort to their old haunts and habits; but finding few if any of their old associates, they have soon felt that their former habits were not so pleasant, and having lost all relish for a vagabond life, have voluntarily returned to the house and asked admission and employment as a boon!”

He justly animadverts upon the unreasonableness of those who expect “a House of Refuge will accomplish, in a few months, what respectable and even religious parents find it difficult to do even in a series of years.” They have their children from the first hour of their existence, and through all that precious period of childhood, while they are comparatively strangers to evil habits and associations, and yet how often do they fail to secure their standing in good habits and sound principles? How preposterous then, must be the expectation that the House of Refuge will take them, when their moral and intellectual nature is so completely perverted and corrupted, and thoroughly reform them in a few months!

Touching the employment of boys in the institution, and after they leave it, many difficulties are experienced. The modes of labor which are adopted, are, of course, fitted to the age and physical ability of such children, but are by no means calculated to prepare them for that sort of life, which most of them expect to lead. To remove them completely from the temptations and exposures of city life, is considered very desirable; and hence, to place them with farmers in the country, 55 where the means of indulging vicious inclinations are supposed to be few and far between, is always preferred to placing them with mechanics, where they will be likely to find associates who will be the subjects or agents of corruption. But to bind a boy to a farmer till he is of age, is regarded by most parents as a very undesirable disposition to make of him, and when a boy is thus bound, he generally understands that his parents or friends will readily connive at his escape. The general wish is, that they should be bound to trades, if bound at all.

It seems to be admitted that, as a general thing, city boys are not likely to make good farmers, unless put to it very young, and by degrees accustomed to hard work. “The routine of labor pursued in the Refuge, does not seem fitted to prepare boys for that kind of life, to which the greater part of them are destined. A boy here, works from five to seven hours a day at very light work, in a room that is warmed and made comfortable in winter, and sheltered from the wet and heat of summer. He has from one to two hours for play every day, and an abundance of playmates. After living in this way about one year, (sometimes a little less, and sometimes more than a year,) he is bound to a farmer, who makes him work, perhaps ten or twelve hours in a day, and at labor which is much harder than any thing he has been accustomed to before. He has, perhaps, repeatedly been told, while in the Refuge, to behave well, and he should soon have a good place, and it has been told in such a way, that to be with a farmer is, in his mind, to be in a kind of paradise. But when he finds hard work, no time for play, frequent exposure to heat and cold, few or no companions, it is not strange that some are disappointed and disposed to abscond.”

In contrast with this mode of proceeding, our correspondent proposes the following outline. “If it were possible,” he says, “I would keep every boy at least three years, and I would have him understand, when he comes into the Refuge, that he must not expect to be discharged in less than three years, so that his mind should be at ease on that point. I would have them employed at trades, that would be useful to them after their discharge. In three years they would acquire so much knowledge 56 of a common trade, that their services would become desirable to respectable mechanics. In three years, if properly disciplined, their habits of industry, obedience, &c., would acquire a degree of strength. They would become weaned from their old associates and habits. In three years the older ones, (if too old for apprentices,) would become sufficiently acquainted with their business to earn their living. Their parents would not feel that their time was lost. They would see, and the boys themselves would see, that they are acquiring that sort of knowledge that will be useful to them in after life. Many of our older boys think now, that their time is in a good degree lost. They know, indeed, that the intellectual education they acquire will be of service to them, but they feel, at the same time, that they are not learning any thing that will secure them a livelihood after their discharge.”

Among the obvious evils of a short continuance in the Refuge, (besides the impracticability of forming new habits in the children,) are, (1.) The state of constant restlessness in the alternation of hope and disappointment, respecting a release. Parents are permitted to visit their children once in two months, and in these visits the principal subject of conversation is about their “getting out.” The children are constantly urging their parents to have them released, and the parents are equally constant in promising to do so. This excites much uneasiness in the former, and neutralizes what would otherwise be the useful discipline of the house; and, (2.) The institution is deprived of the fruits of its good discipline as fast, nearly, as they appear. “By constantly sending out the best, we lose their influence, which might be of much service with the more vicious. If, in any community, the best members were constantly leaving, and only bad members coming in to supply their places, the condition of that community, with regard to morals, would become very low, if not hopeless.”

These opinions, formed from an intimate acquaintance with the practical working of the system, are entitled to weight. We do not adopt nor reject them. We do not say that any material modification of the present rules of admission, or of the form of discipline is practicable. But, if the views we have ever held respecting the design of a House of Refuge are 57 just, viz., to rescue those whose childhood lies all open to evil examples and influences, and to put them under treatment, which shall resemble, in its main features, that of a good home, then are we clear, that a more rigid discrimination in the admission of inmates should be observed. The most hopeful subjects of such domestic discipline, are those who have not past into that stage of moral and intellectual stupor and impenetrability, on which ordinary sympathies fall as water-drops upon a marble slab. Notwithstanding the sad neglects and abuses they have suffered, there are still impulses in their young natures, which can be worked upon by kind words and approving smiles, and indeed, their present unhappy condition is owing, in no small measure, to the absence of such influences from the place which (for want of a better) they call their home. We have known cases, not a few, in which the manifestation of a real interest in the welfare of a child at a favorable moment, has been, in its effects, like the gushing forth of a living spring from the smitten rock. And it is in this view, that we most highly commend a recent measure in the institution, whose report is now under review, viz., the employment of an intelligent, judicious, capable female, to supervise with maternal care and tenderness the moral and physical condition of the boys.

We all know with how many chords the human heart is strung, which vibrate only to the soft breath of sympathy. A gentle accent—a trifling act of kindness, or even a glance of pity, will awaken their harmonies, and fill the heart of the rudest child with what may well pass for rapture. There is a period, however, at which these better feelings become comparatively incapable of excitement. They have either lost their vitality by abuse or neglect, or they have been overborne and swallowed up by the ebbless tide of vicious associations and indulgencies. The voice of virtuous charmers is no longer heard, charm they never so wisely.

But we cannot enlarge on this fruitful topic, suffice it to say that some of the defects of the present system are remediable, as we have already intimated, and others are inseparable from the very nature and design of the institution, and can only be set over against the greater good. 58

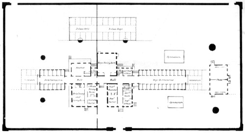
The report furnishes a very gratifying account of the progress which has been made in the erection of a new Refuge for Colored Juvenile Delinquents. A front view and ground plan of the structure accompanying our present number and the following general description of the arrangement of the various departments, may be interesting to our readers.

The site embraces eleven acres of ground, and is intended to afford ample room, (at some future time,) for a new Refuge for white children. The lot lies in the form of a parallelogram, 400 feet by 210, and is enclosed by a wall varying in height from 20½ to 30 feet.

“The arrangement of the buildings within the enclosure, which are all of brick, with slate roofs, is made with reference to a total separation of the boys and girls, and to the existence of three separate classes of both male and female inmates: the first (or best) and second classes each to have a play-ground and work-room, and the members of one class not to be allowed to converse with those of the other, on any occasion; the third class, consisting of the most depraved inmates, to be kept, until in a condition to warrant promotion to a higher class, in separate confinement, with a suitable allowance of out of door exercise for the preservation of health, said exercise to be taken in an enclosure specially designed for this purpose, where no conversation between the inmates shall be permitted.

“The numbers of these three classes which can be accommodated when the buildings marked on the plan shall be erected, as ultimately designed, are—

Boys. Girls.
1st Class 40 27
2d Class 56 45
3d Class 30 22
Total 126 94

“Dormitories for the first and second classes are at present provided for—

Boys. Girls.
1st Class 30 14
2d Class 42 22
Total 72 36

“The erection of all of the other buildings specified in the plan, was authorized, with reference to the accommodation of 250 inmates. They consist of—

“1. A main building, three stories in height, containing offices and chambers for the officers, school-rooms and infirmaries 59 for the male and female inmates, a dining and sitting-room for the girls, &c.

“2. Two buildings projecting from the rear of the main building; the one in the male department, two stories in height, and containing the chapel and the boys’ dining-room; the other in the female department, three stories in height, and appropriated for the kitchen, the wash-room, store-rooms, &c.

“3. Two wings, each three stories in height; the one, in the female department, containing the dormitories and bathing-rooms for the girls; the other, in the male department, containing the boys’ dormitories.

“4. A building, two stories in height, near the southern wall of the male department, the first and second stories of which are designed for work-rooms, and the basement for a washing and bathing-room for the boys.

“A corridor, 12 feet in width, extends the whole length of the main building and wings, a distance of 243 feet.

“Many important points, in addition to the classification of the inmates, claimed the attention of the Board, in the preparation of the plan—e. g. security against the escape of the inmates, and their constant supervision by an officer at all times of the day; the proper ventilation and warming of all the apartments; provision for out of door exercise for the inmates in all states of the weather, &c. These, it is believed, have all been kept in view and provided for, in the plan adopted.

“The wall of enclosure, excepting the gate-way and a portion of the pointing, is completed; the work-shop is finished; and of all the other buildings the walls are up, the roofs on, and a small part of the flooring laid.”

Extracting flues, connecting with shafts leading to the external air, have been inserted in all the dormitories and other rooms, to ensure a good ventilation at all times; and suitable arrangements have also been made for heating the different apartments. We trust the Managers have succeeded in securing these two most important requisites to the health (physical and moral) of their new institution. A full supply of good water, fresh air and wholesome warmth, is what every institution of the kind wants; and yet in one or more of them almost all are deficient.

The second document, at the head of the present article, shows a prosperous state of the institution of which it treats. The whole number of children and youth who have found refuge within its walls is 4,397. Of these, 568 were under its care, at different periods, during the year 1848. The number 60 remaining January 1, 1849, was 355; and 213 were disposed of during the year. The chief branches of labor are, making and seating chair frames and manufacturing razor strops. Among the improvements of the year is the introduction of a small steam engine, to relieve the severity of some parts of the labor, which is not unfrequently prejudicial to the immature strength of the inmates.

The disbursements of the year amounted to $22,896 10, and the receipts $24,122 32. Of the latter sum, $7,198 77 is from the labor of the inmates, $7,323 83 from the State, $4,600 from the city of New York, and $4,026 50 from theatre and circus licenses. The chief items of expense were food and provisions, $9,106 41; salaries, $4,875 89; clothing, $2,297 90.

The importance of more perfect classification and separation, especially among the female inmates, is urged. “Contact with the older and more depraved of their sex, is, for obvious reasons, far more destructive to young and comparatively innocent females than to males.”2

In confirmation of the views we have presented in a former part of this article, we cite the following passage from the report now before us.

“This is the proper place to allude to a practice of which we have already complained more than once—that of sending to the Refuge, from mistaken ideas of humanity, subjects so far advanced in years and in crime as to give but faint hopes of their own reformation, while by example and influence they are calculated to do infinite harm to others. Those who have travelled long and far on the downward road of vice, are most unfit companions for such as have been arrested at the outset of their guilty career. It is to guide and to reclaim the latter, that houses of refuge are established; the reformation of the former must be attempted in other places and by other means. To this practice of sending to the refuge hardened offenders, whose proper place is a State prison, the managers ascribe the frequency of attempts to escape. Many sent to us as boys, are men in size and strength, impatient of restraint, reckless of consequences, hardened, daring and ingenious in all mischief. While such subjects are sent us, to corrupt, to organize, and to lead the younger and more orderly, 61 attempts at escape will continue to be made, and in spite of all the vigilance of the officers, will occasionally be successful.

“The rapid increase of crime in our city, and the constantly augmenting numbers of vicious and vagrant youth, is a subject of serious contemplation. It would be serious enough, if it only kept pace with the astonishing increase of our population, but it even outstrips it. There is no way of getting at complete statistics in this matter, but all the details that can be obtained confirm this view. Thus there were committed to prison in the city, including those sent before trial, and after sentence, and excluding summary convictions,

in 1835, 2387 persons,
in 1844, 9153 persons.

During this time the population increased from 270,089 to 312,710 (in 1845) or about 35.1 per cent., while the increase in crime was 354.6 per cent. The average number of inmates in the Tombs was, in 1846, 174; in 1848, 216, an increase of 21.2 per cent. in two years, or over three times the growth of the city, which of late was about 6.90 per cent. for two years. This startling disproportion, is more or less true of all large cities. It is a law of our social state, that growing prosperity shall find its drawback in the parallel increase of misery; and that crowded communities, as they offer the most liberal rewards to good conduct and enterprise, so shall contain likewise the most seeds of evil, the strongest temptations to vice, the largest amount of misery. And besides our own neglected and depraved population, the tide of emigration, now setting in stronger and stronger every year, while it enriches our country, leaves much of its refuse in our city. Pauper families, and even felons, are not unfrequently sent over to us, as a cheap way of disposing of them, by the selfishness or mistaken humanity of those whose duty it is to provide for them at home, thus swelling the number of houseless, friendless and lawless youth, drifting loose upon society, to become utterly ship-wrecked, unless the active hand of benevolence is stretched out to save them.”

Of those children received in 1848, 209 were boys, (192 white and 17 colored,) and 55 were girls, (45 white and 10 colored.) 140 of the whole number were from the Police and Sessions of the city, and of the white children only THIRTY-NINE were of American parentage. 127 were of Irish birth! Of 141 boys discharged, 53 were indentured to farmers, 14 to shoemakers, and 19 sent to sea; and of 47 girls discharged, 33 were indentured to housewifery. The average age of the inmates received during 1848, was thirteen and two and a half twelfths years. Seventy-seven were over fifteen when received. 62

New House of Refuge at Rochester.—Our readers are perhaps aware, that an institution similar to the present House of Refuge in New York, is about to be established in Rochester for the accommodation of the Western counties of the State. A friend has kindly furnished us with the following description of the buildings, &c. Mr. Wood, the present superintendent of the New York House of Refuge, is expected to take charge of the new establishment, and the discipline will probably be substantially the same. An appropriation is expected at the present session of the legislature, that will enable inmates to be received this spring. No provision is yet made for females.

“At present,” says our correspondent, “they have only erected a main or centre building and one wing. The whole length of this building is 234 feet. Main building 86 by 60 feet. Wing 148 by 32 feet, terminated by a building 37 feet square. The basement of stone, 10 feet in the clear, walls above of brick. The basement in the main building is intended for the culinary department; that in the wing for wash-rooms, bathing-room and workshops. The first and second floors of the main building are divided into four rooms, with suitable closets, and three halls, with staircases. The main hall in the centre is 15 feet wide; side halls to communicate with the wings 12 feet wide. The rooms on the first floor of the main building are intended for superintendent, matron, &c. The rooms on second story for hospitals and sleeping-rooms for the officers of the institution. The upper or third story of main building is intended for a chapel, 60 by 60 feet, the entrance to which is from the side hall.

“The first story of the wing is divided into two rooms for school and dining rooms, each 70 by 30 feet. In second story of wing are the dormitories for the inmates, two tiers in height, and 86 in number, arranged next the outside wall. Hall 15 feet wide in the centre. Each dormitory is 7½ feet wide and 7½ feet high, and is furnished with a narrow window reaching from floor to ceiling. Dormitory doors are of cast-iron open work for summer ventilation, allowing the air to pass directly across the building; in addition, each dormitory is supplied with fresh air, descending from the cornice by iron pipes, and passing through the iron doors. This building is surrounded by a stone wall, 63 four feet thick at the foundation and tapering to two feet at the top, 23 feet from the foundation, and 20 feet above ground. The wall is 500 feet long and 400 feet wide, embracing about 4½ acres of land, and cost $12,000. The building, as above described, cost $26,000. The whole is a most perfect piece of workmanship in every respect, built in the very best manner, and is considered a most complete model for such a purpose.

“Attached are 40 acres of land, which it is intended the inmates shall cultivate, thus affording them a healthy employment, and, at the same time, furnishing a supply of vegetables, &c., to the institution. The buildings are situated about a mile from the centre of business, in a fine dry sandy soil.”

We had prepared a sketch of the proceedings at the opening of the State Reform School in Massachusetts, and of the discipline, &c., prescribed there, together with a view and ground plan of the buildings, but our limits are so contracted as to forbid its appearance in the present number.

Art. II.—MORTALITY AND CRIME.

It is not generally known, although the fact has been sufficiently demonstrated by different vital statisticians, that great annual mortality is accompanied by a proportionate increase of births, so that the population is kept at its usual average even if it does not increase. One effect of this mortality and increase of births is the disproportion between the numbers of the young, the improvident, and the thoughtless, and the older, more prudent and considerate. Mr. Slaney, in his report on Birmingham and other towns, made to the commissioners for inquiry into the state of large towns and populous districts, after referring to Mr. Chadwick’s exposure of the popular fallacy, that the sufferings caused by disease, especially among the poor, restrained the increase of population, says: “I have constantly observed, wherever the mortality was high in close, narrow, neglected courts and alleys, there the children swarmed, as if to fill up the places; and it has been demonstrated 64 again and again, that a high mortality in an increasing country, only leads to a great increase of births.” After this preliminary notice, the reader will be able to understand the force of the following remarks on the connection between mortality, (including, of course, its physical and moral causes,) and crime.

Mr. Slaney contrasts the two classes or kinds of inhabitants of the same city, in the one of which the annual mortality is but two, and in the other four per cent. “We shall find the rate of mortality one great criterion of comfort, therefore, of contentment, of good conduct, of moral habits, of intelligence, docility, usefulness and value.”

“In the one case we shall find a population having little to complain of, ready to attend to advice, having had time to learn and to think, having experience from lengthened life, and being valuable subjects, docile and industrious, possessing their chief safe-guard against tumults or disorders, ‘the hope of improving their condition.’ In the other will be found a body, consisting in a great measure of the young, who cannot repay their support; a large proportion of the rest will be inexperienced, untaught, untried, having had no time to learn or to think. All will be more or less reckless, and hard in mind and conduct; they have been formed by the cautious course of circumstances around them; poison to the mind, to the body, has been the course of their only education. Their maxim will be the heathen maxim of old, ‘Eat and drink, to-morrow we die;’ forced by their necessities to labor, experience and wisdom will be wanting; they will not husband their wages, but seek for excitement in intemperance, or low sensual indulgences; their consumption of spirits will be ten times that of the happier class. The gratification of their animal passions will be their chief object; illicit connections will be formed; early ill assorted marriages will take place without any chance of provision for offspring; there will arise multitudes of sickly and neglected children, pressing into the place of those early victims just departed, and to be cut off by the same melancholy process; and thus the scene revolves. This class will eagerly join in mobs or disturbances, partly for the sake of excitement, and because they have not that security for good conduct—the hope of improving their condition.”

Dr. Lyon Playfair, one of the commissioners, in his report on the large town in Lancashire, remarks: “The tendency to crime is increased by the comparatively few old and experienced men left to counteract the haste and inexperience of youth. In the recent mobs in Lancashire, the great majority 65 of the rioters were found to consist of persons just emerging from boyhood; the absence of elderly persons among them was a matter of common remark. Mr. Combe has observed, that the comparative paucity of aged and cautious persons is the cause of the inconsiderate and turbulent movements in America. The obstacles in the spread of education are, also, connected with these causes.”

Dr. Playfair said previously, “The facts exhibited in the preceding sections, will, I apprehend, convincingly show, that a crowded and unhealthy district, with all its inevitable accompaniments of low morals and low intelligence—where the condition of human beings is scarcely above that of animals—where appetite and instinct occupy the place of the higher feelings—where the lowest means of support encourage the most improvident and early marriages,—is not the place where we shall find a diminishing or even stationary population. For the early unions there, are followed by early offspring; and although more than half that offspring may be swept away by disease during early infancy, yet nearly a third of it will grow up, in spite of all the surrounding evils, to follow in the steps of their parents, and in their turn to continue a race ignorant, miserable and immoral as themselves.” In a note, Dr. Playfair makes the following estimate. “If we suppose a district of 50,000 inhabitants, with births as 1 in 22, and deaths as 1 in 33—a ratio not actually as unfavorable as that of Holme—a little calculation will show that, by the end of twelve years, the population will have swollen it to nearly 60,000!”

Sameness of the Causes of Crime and of Disease.—Dr. Lyon Playfair, in the report already referred to, says expressly: “All the experience acquired during this inquiry, points out that one immediate effect of the operation of morbific causes, even when not present in sufficient intensity to produce direct disease, is to create an appetite for vicious indulgences. It is too common a mistake to transpose the effect for the cause, and to ascribe the disease to the indulgence of those passions, which, in the first place, were created by the low sanatory state of the district.”

To the same purport are the pointed conclusions of Mr. Slaney. He had just been describing the low class of dwellings 66 of the poor and the wretched, and the self-interest of small capitalists to prefer the erection of these to ones of a better description. He goes on to say:

“I have endeavored to describe some of the evils arising from the want of proper sanatory regulations in many of these crowded and neglected places. They may be summed up as follows:

“1st. Shortening the duration of the lives of the community.

“2nd. Disease, suffering and inability to work on the part of many who survive—the cause of great cost to the country.

“3d. Crimes, theft, and the loss of property, which the police constantly point out as arising from these neglected classes.

“4th. Riots, disturbances and drunkenness, which may generally be traced to the same class of persons, often to the same place.

“5th. Great injury to the education of the poor, which is constantly neutralized in its good effects by the neglect and evils they see around them. The same observation applies to the inestimable advantages of religion and of attendance on religious worship.

“6th. Great discontent in some, and sluggish apathy in others, producing recklessness of conduct, indifference, and want of attachment to the institutions of our country.

“7th. The loss in the humbler classes of the cheapest, best and most enduring pleasures, viz., those arising from the kindly influence of the domestic relations between husbands and wives, parents and children, brothers and sisters—this pure source of happiness derived from mutual kindness, attachment and good offices—is, amid the hardening and disgusting scenes described, almost destroyed.

“Amid such scenes, the children become hardened, careless of cleanliness, unused to order, and all the benefits derived from the best education which may be given, is destroyed by the constant evil examples they see around their homes. This is especially the case with the female sex, who, if early tainted by the disgusting scenes existing in the places described, and by the want of all decency and self-respect there exhibited, become at a future day, the nursing mothers of vice and wretchedness, instead of inculcating the household virtues.”

The sameness of the causes of diseases and of crime, are clearly indicated by the Rev. Mr. Clay in his report in the borough of Preston, as where he says:—

“A map of the town has been made, shaded in those districts which are ill ventilated, drained and cleaned; the increased depth of tint indicating a proportionate degree of dirtiness, &c. 67 The number of deaths in the respective streets is also given, every blue spot representing a death from fever or epidemic disease, and the red spots showing the frequency of death from other disorders. The residences of persons charged with offences during the last year are also indicated, and the whole tends to show, that dirt, disease and crime are concurrent.”

Overcrowding and Defective Ventilation.—Dr. Southwood Smith, in his evidence before the commissioners for “Inquiring into the state of large towns and populous districts,” adduces the following painful, but yet instructive observations. We reproduce them here, not merely as a warning against a remote, or even a threatened evil, but with the hope of stimulating our fellow-citizens to the adoption of such measures as shall eradicate similar nuisances too near their own doors.

“I wish particularly,” Dr. S. Smith states, “to draw attention to the importance of having a certain number of rooms in the dwelling-houses of the poor, though I am aware of the difficulty of legislating on this matter, and of the still greater difficulty of carrying out practically what the legislature may declare to be its intention and will. Still it is right, that the attention of the legislature and other public bodies should be called to the physical deterioration and moral degradation, which results from the want of proper room in the dwelling-houses of the poor. Besides the evidence on this subject, which has been published in the report on the sanitary condition of the laboring population, a large mass of evidence to the same effect will be found in the reports of the sub-commissioners under the Children’s Employment Commission, and in the statements of a great number of witnesses examined by them. Instances such as the following are given: ‘A mother and her son, being an adult, sleep in the same bed. Grown-up females and unmarried young men sleep in the same room. A man, his wife, and his wife’s sister, the latter being an adult, sleep together in the same bed.’ I have myself seen, a young man, twenty years of age, sleeping in the same bed with his sister, a young woman, sixteen or seventeen years old. That incestuous intercourse takes place under these circumstances, there is too much reason to believe; and that when unmarried young men and women sleep together in the same room, the women become common to the men, is stated as a positive fact; but I regard another inevitable effect of this state of things as no less pernicious; it is one of the instances which, for want of a better term, may be called unhumanizing, because it tends to weaken and destroy the feelings and affections which are distinctive of the human being, and which raise him above the 68 level of the brute. I have sometimes checked myself in the wish, that men of high station and authority, would visit these abodes of the less fortunate fellow-creatures, and witness with their own eyes the scenes presented there; for I have thought the same end might be answered in a way less disagreeable to them. They have only to visit the Zoological Gardens, and observe the state of society in that large room, which is appropriated to a particular class of animals, where every want is relieved, and every appetite and passion gratified, in full view of the whole community. In the filthy and crowded streets, in our large towns and cities, you see human faces retrograding, sinking down to the level of those brute tribes; and you find manners appropriate to the degradation. Can any one wonder that there is among these classes of the people so little intelligence—so slight an approach to humanity—so total an absence of domestic affection, and of moral and religious feeling? The experiment has been long tried on a large scale with a dreadful success, affording the demonstration, that if, from early infancy, you allow human beings to live like brutes, you can degrade them down to their level, leaving to them scarcely more intellect, and no feelings and affections proper to human minds and hearts.”

Dr. Lyon Playfair adduces instances of the crowding of persons in the same room, without even the plea of necessity. They are not, he informs us, the most extreme cases of the kind.3 69

In Preston, out of 442 dwellings examined in unhealthy localities, and inhabited at the time of the inquiry by 2400 persons sleeping in 852 beds, it appeared that

In 84 cases 4 persons slept in the same bed,
In 28 5
In 13 6
In 3 7
In 1 8

“Amidst the dirt and disease of filthy back courts and alleys, vices and crimes are lurking,” says the Rev. Mr. Clay, “altogether unimagined by those who have never visited such abodes.” The inspectors of prisons in Scotland, from separate inquiries, have also come to the conclusion, that the physical causes of disease, indirectly become the causes of crime.

Public Lodging Houses, are another prolific source of disease and vice. They are, in nearly all large cities, the nightly resorts not only of the migrating laborer, and travelling artisan, but, also, of the lower mendicants, thieves, and prostitutes. These resorts are well known to the criminal police. In 1831, Mr. James knew a house of this description in London, to contain 126 persons, many of them women and children, and perhaps not more than a dozen beds in the place. At the census of 1841, there were not more than 30 to 40 in any of these houses; “still these numbers crowd the houses most annoyingly.” It is no uncommon thing, as we learn from Dr. Duncan, (Report on the Sanatory State of Liverpool,) for the keepers of lodging houses to cover the floor with straw, and allow as many human beings as can manage to pack themselves together, to take up their quarters for the night, at the charge of a penny each. The havoc made by the cholera in the lodging houses at Manchester, in 1832, was terrible. In some of these houses, as many as 6 or 8 beds were contained in a single room, which are crowded promiscuously with men, women, and children. Dr. Howard, after showing the lamentable extent to which they become the hot-beds of febrile diseases of the most violent and fatal character, owing mainly to their filthy and unventilated condition, thus describes the morals of their frequenters, and their malign influence in this way on the young and inexperienced. “They serve as open receptacles of crime, 70 vice, and profligacy, and as nurseries in which the young and yet uninitiated, become familiar with every species of immorality. They are the haunts of the most depraved and abandoned characters, as well as the most miserable and suffering objects of the town, (Manchester,) and constitute one of the most influential causes of the physical and moral degradation of our laboring population.”

Unless we are misinformed, the investigations now making by the Board of Health of Philadelphia, will reveal a state of things, not much behind, although on a smaller scale, those described in the foregoing extracts; and as regards New York, Dr. Griscom’s report, made a few years ago, exhibits a still darker picture. With the warnings on the other side of the Atlantic to deter us, we ought to have kept clear of these nuisances entirely. Let us, as we have imitated the people of Great Britain for evil, imitate them also for good, by instituting the same searching inquiries into the nature and extent of these physical and moral corruptions, that are recorded in the proceedings of the various Parliamentary committees and Royal Commissioners.

In Glasgow, the lodging houses have been subjected to regular municipal supervision and ordinance, and, as we are told, with excellent effects.

Art. III.—STATE PENITENTIARIES.

I. The Twentieth Annual Report of the Inspectors of the Eastern State Penitentiary of Pennsylvania, transmitted to the Senate and House of Representatives. March 1849, pp. 36.

II. Report of the Board of Inspectors of the Western Penitentiary of Pennsylvania, for the year 1848, with the accompanying documents. Pittsburg, 1849, pp. 21.

III. Report on the condition of the New Jersey State Prison, embracing the Reports of the Joint Committee, Inspectors, Keeper, Moral Instructor and Physician. Trenton, January 1849, pp. 44.

IV. Documents relating to the State Prison. Senate of Massachusetts, Document No. 5, pp. 24.

I. The first document in the above list is worthy of a much more extended notice than our limits allow us to give. We shall notice its constituent parts in their order. 71

(1.) In their report the inspectors refer with natural interest to the opening of the State Lunatic Asylum, which is expected to be completed as early as January 1851. For want of it, “instances have occurred in which the sheriff has been the medium of a message from the judge who pronounced the sentence, to the chief officer of the prison, informing him that the prisoner was insane, but that no other mode of providing for the case existed.”

The subject of pardons occupies a prominent place in their report. It appears that but a fraction over six per cent. of the pardoned have been recommitted; and the percentage of pardons in relation to number, sex and color, cannot be so well set forth in any other way as by transferring the table to our pages.

Table showing the whole number of pardons granted from the establishment of the prison in 1829 to 9th July, 1848.
Year. Whole number in confinement. No. of pardons. Annul
average
per
centage.
Whites. Colored. Total,
both
colors.
Whites. Col’d.
M. F. Tot. M. F. Tot. M. F. Tot. M. F. Tot.
1831 75 75 25 4 29 104 1 1
1832 90 90 27 4 31 121 4 4
1833 129 129 41 4 45 174 2 2
1834 189 189 81 2 83 272 8 8 1 1
1835 261 8 269 155 11 166 435 10 10 4 4 2.38
 
1836 278 11 289 179 19 198 487 2 1 3
1837 320 8 328 199 19 218 546 4 1 5
1838 333 11 344 199 22 221 565 10 10
1839 241 6 247 150 16 166 413 2 2 1.26
to Jan. 15th.  
1839 335 9 344 214 30 244 588 9 9 1 1
1840 331 8 339 203 31 234 573 19 19
1841 293 6 299 171 32 203 502 11 1 12 1 1
1842 298 5 303 153 21 174 477 20 20 2 1 3
1843 319 6 325 146 16 162 487 15 15
1844 332 12 344 136 17 153 497 39 39 4 3 7
1845 230 10 240 97 11 108 348 23 1 24 2 2 5.37
to Jan. 21.
1845 305 15 320 113 16 129 449 5 5
1846 321 14 335 110 16 126 461 24 1 25
1847 297 9 306 113 13 126 432 20 20 5 5
1848 245 8 253 97 12 103 356 6 1 7 4.08
to July 9th.

72

During the year 1848, there were received 121 convicts, viz., 88 whites (two females), and 33 colored (three females), and 128 were discharged. Of these, 83 served out their time; 13 were pardoned; 11 discharged by order of law; 15 died from disease, and one was a suicide. The whole number of convicts in confinement during the year was 415, viz., 299 white and 116 colored. Of the 16 deaths, 10 were whites and 6 colored.

(2.) The warden’s report shows that of the 121 convicts received, 32 were foreigners, and 56 were natives of Pennsylvania. Ninety-one were under middle age; 96 were of intemperate habits; 76 could read and write; 60 were unmarried. Only 14 were bound and served their time out; 13 were bound and broke their indentures; and 96 were never bound.

Some curious facts appear in the various summaries which these details embrace. For example, of the 2,421 prisoners received into the institution from its opening in October 1829, 619 could neither read nor write; 2,020 were addicted to the use of intoxicating drinks; 460, or more than one-sixth, were foreigners; and of these last, Ireland supplied 199 and Germany 112. Seventeen hundred and twenty-nine were first convictions; 1,451 were never married; and 18 had been married and separated; 1,631 were whites (48 females) and 790 colored (86 females); 467 broke their indentures, and 1,569 were never bound. Of the 2,421 crimes, 2,000 were against property.

(3.) Next in order is the physician’s report, in which special reference is made to the inordinate length of sentences, when the nature of the discipline is duly considered. Dr. Given thinks the coloured prisoners as a class, suffer a double burden, inasmuch as their sentences are longer and the enervating influence of imprisonment is more severely felt by them,—and he furnishes the following items on this subject.

Whole number of white prisoners, 1631
Whole number of colored prisoners, 790
Average length of sentences of white prisoners, 2 y., 8 ms., 2 days.
Average length of sentences of colored prisoners, 3 y., 3 ms., 14 days.
Whole number of pardons of white prisoners, 253
Whole number of pardons of colored prisoners, 25
Whole number of deaths of white prisoners, 73
Whole number of deaths of colored prisoners, 141

73

The Doctor is disposed to vindicate the exercise of the pardoning power, even to a still greater extent than heretofore, unless the need of its exercise is taken away by a proper adjustment of the penal code to the penal discipline of the State. We are not prepared to say how far it would be safe to entrust the executive with power to remedy the errors or supply the defects of the Legislature, but if it is given, its extent should be clearly defined, and its exercise closely watched. We do not make this remark with any reference to the past. It is suggested by the idea, advanced in the report before us, that the pardoning power must needs be freely exercised, to compensate for the undue severity of the sentences. It is easy to see where such a doctrine would lead if followed out. We do not doubt the correctness of the statement, that the sentences at present prescribed by our laws, are quite too long and too indiscriminately inflicted, if we take into consideration the nature and efficacy of the discipline under which they are to be worked out; but in our haste to remedy the evil, we need to be cautious, lest we incur another and even a greater, because a more general and radical one. We hope this distinct call of attention to the subject, will awaken our legislators to early and efficient action. Where crying injustice is now done under color of law, a double wrong is inflicted on society. The agent and the instrument, become alike odious.

Dr. Given seconds the movement of the inspectors towards some relief from the commitment of insane convicts. He speaks of it not as a thing happening now and then, but as “A PRACTICE to send thither as criminals, persons notoriously insane or idiotic.” He also suggests the importance of some more suitable provision than now exists, for those who may become insane during their imprisonment.

Of the 15 deaths by disease, eleven were more or less diseased on admission. The mortality for 1847 and 1848, gives a mean of 4 per cent., which is the usual average. In respect to insanity, Dr. Given’s researches show, that of the 121 commitments during the year, 30 have had insane relatives;—10 cousins, 10 uncles or aunts, 5 parents, 4 mothers or sisters, and 1 grandparents.

Ten cases of insanity are reported, 5 whites and 5 blacks, 74 average age, 25. Four were in imperfect health when admitted; one has an insane uncle, and two have an insane brother; 5 are stated as cases of dementia, and 5 as cases of monomania.

(4.) The moral instructor’s report informs us, that 288 sermons have been preached in the prison, which is an average of 48 to each corridor, and nearly one service for every Sabbath of the year. The whole number of visits recorded as having been paid by this officer to the convicts, in the course of the year, is 3,385.

II. The condition of the Western Penitentiary, is exceedingly gratifying. The inspectors allude briefly to the animadversions which have been made upon the Pennsylvania system; but they express their confidence, that the happy results which have attended its administration in that institution, will excite in the public mind the same confidence in the advantages of that system over all others, which long experience and personal observation has excited in theirs.

The number of convicts received during the year 1848, (all males,) was 55—discharged in the same time, 52. Of 1,286 prisoners received from the opening of the prison, July 1826, only 22 have been white females; and only 215 colored convicts, of whom 37 were females. Of the 115 in confinement January 1, 1849, 88 were addicted to intemperance; 44 were natives of Pennsylvania, and of the 55 received during the year, 32 were unmarried. In respect to occupation, 42 of the 115 were laborers, 15 boatmen, 6 blacksmiths, 5 tailors. Of the 55 received during the year, 38 were under middle age.

The physician’s report shows, that among 167 prisoners in confinement during the year, only 4 deaths have occurred. Two of the four were thoroughly diseased when admitted, a third was of a consumptive family and died of consumption, and the fourth was sixty-one years old, of intemperate habits and died of apoplexy. A complete table is presented by the physician, showing the color, sex, duration of imprisonment, and state of health on reception and discharge of each prisoner, released by expiration of sentence or by pardon, from which it appears, that, with one exception, they were all received and discharged in good health. Among these there were eleven, one or both of whose parents died of consumption, two who were intemperate, 75 and one very intemperate, and their average term of imprisonment was eighteen months. Six were in better health when discharged than when admitted, and one, who was partially insane when admitted, was discharged in good health.

As a striking illustration of the healthfulness of the institution, the physician states that between sixty and seventy different convicts have been employed during the year in the shoe department, and forty-eight or fifty on a daily average; “of this number only four have failed in consequence of indisposition, to perform their full task of work. Throughout the year every other than the four referred to have performed their regularly allotted task.” We are not surprised that the medical officer thinks it proper to italicise a record of so remarkable a measure of health.

From the moral instructor’s report, we extract a single, but very sensible paragraph.

“It is not unfrequently the case that subjects which have been presented in the ministrations of the Sabbath, are called up by the prisoners themselves during the daily visitation in their cells, and thus the opportunity is furnished of impressing upon their minds, when alone, that heavenly truth which may ultimately bring them to repentance and to God. In this feature of the separate system, one of its principal excellencies consists. The prisoner, by himself, separated from all vicious influences, is far better prepared to receive and retain wholesome instruction than when surrounded by men of a moral cast like his own. If the reformation of convicts be accomplished at all, it must be done, as a general rule, by those moral influences which are made to reach him, when and where intercourse with the vicious is cut off. In this situation he will listen, reflect and reform.”

III. The New Jersey Penitentiary, at Trenton, received 108 convicts during the year just past; and had 176 in confinement December 31, 1848, which is 23 more than at the close of 1847. Of the 85 discharged during the year, 71 had completed their sentences, twelve were pardoned, (two on the day before their sentence expired,) and two died. Of 176 in confinement at the date of the report, 99 were received in 1848, and 38 in 1847. Eighty-six were for crimes against property, 142 for a first offence, 127 were under middle age and 42 were foreigners. In respect to color, 123 were whites, 76 (114 males and 9 females,) and 53 were colored, (one a female.) Sixty-six had no trade or occupation. The available means of the prison, at the close of the year, were upwards of six thousand dollars.

The physician’s report states, that “but one death occurred during the year and that a suicide. From diseases contracted within the prison, (where there are under discipline 260 persons,) do not average one a year.” The physician says, that “all experience has proved steam to be the best carrier of heat, and by far the most certain and economical.”—p. 43.

The report of the Rev. Mr. Starr, (the moral instructor,) is quite a valuable and intelligent document. We cannot refrain from copying a single paragraph, touching the advantages of separation as an element of prison discipline, especially in its relations to moral and religious instruction.

“The chances of amendment under the separate system, duly sustained, must be incalculably greater than where companies of men are congregated in their workshops. The plan is severe; but, to use a paradoxical phrase, it is a mild severity. The less abandoned are shut out from association with the hardened, who may have spent years in familiarity with crime. Each man has his books and his thoughts and his conscience for companions. His keepers, his physician when in sickness, his moral instructor, the superintendent of his daily labor, he soon learns all are his friends. A great deal is in their power, through the pleasant look, the friendly salutation, and the kind interest manifested in those little alleviations which in no degree interfere with the strictest and most wholesome discipline. The prisoner’s self-respect will thus be encouraged and cultivated, as he sees that he is not by all the world regarded in the light of a hopeless outcast. He may be inspired with the noble ambition of regaining his character, and leading in future a reputable life. Such like benefits can be extended with four-fold advantage in the separate plan of imprisonment, while its solitude is relieved by the kind offices of a sympathizing friendship.”

IV. The inspectors of the Massachusetts State prison at Charlestown, make a very favorable report of the health of body and mind of the convicts under their care. “The favorite system of congregate labor and lenient discipline, established in our prison,” they say, “has fully answered the high expectations of its most zealous advocates. Every year brings 77 with it new proofs of its practicability, and of its great superiority over any and every other that differs from it.”

None will dissent, we presume, from the remark of the inspectors, that “it should be remembered by all those who are intrusted with the high prerogative of administering punishment, that the convict in the prison is sentenced by the law to expiate his crime by confinement and hard labor, and that every degree of punishment beyond what is needful for the due execution of this sentence, and the attainment of the best ends to be answered by it, is excessive, is beyond the sentence and intention of the law, and is without law or justice.”

The number of convicts received during the year ending September 30, 1848, was 122; number discharged during the year 129; remaining, 281. Of those discharged, 94 were by expiration and 27 by remission of sentence, 2 were removed to the lunatic asylum, 2 escaped, and 3 died. Of the 281 in prison, 22 are negroes, and 8 mulattoes, 203 are below middle age, and 228 are for crimes against property! Seventy-one are foreigners, of whom 30 are from Ireland. Of the employments, 72 are stone-cutters, 20 blacksmiths, 69 cabinet-makers and upholsterers, 21 brush makers, 9 “solitary prison-sweepers.”

The report of the warden concerning the twenty-seven who were (during the year) pardoned, is very encouraging. “All but one are doing well—are obtaining a livelihood by honest labor, and are becoming respected citizens in the communities where they reside.” Forty volumes have been purchased during the year for the use of the prisoners, among which we notice the Autobiography of Goethe, Bushnell’s Christian Nurture, and Vestiges of Natural History.

The warden is of opinion that the lives of the three prisoners who died was prolonged by their imprisonment, as they had been long diseased!

The prison suffered a serious loss by fire during the year, and from this and other causes the revenue of the institution is less than the expenses by $4,242 79.

The physician’s report is a modest and sensible document, evidently prepared with care. The sickness of the prison would be represented by an average of four patients a day in the hospital. Four hundred and twenty-five days of light 78 labor were prescribed during the year, and about the same number of changes of labor. The general average of convicts during the year was 287; and Dr. Bemis thinks his report shows “a fair average degree of health fully equal to that of the community at large, and vastly superior to what would have been enjoyed by the same class of men in pursuit of their usual modes of living when at large.”—p. 21.

The three deaths were of consumption.

The following remarkable statement from the physician’s report, we cannot refrain from transferring to our pages.

“The average period of imprisonment of all those sentenced for life to the State Prison, since 1818, (amounting to 125,) has not exceeded seven years. Nineteen of this number have died in the Prison after an average confinement of seven years.”

The supply of a substantial suit of clothes and a sum of money, not exceeding five dollars, to each discharged convict, occasioned an expenditure last year of more than five hundred dollars. In consequence of the frequent instances in which the money thus furnished is spent indiscreetly, it has lately been proposed in the Legislature to entrust the dispensation of this bounty to the “Boston Society for the relief of discharged convicts,” and a bill was introduced for that purpose. We have not learned its fate. From a cotemporary print we learn that, in consequence of the great increase in the number of convicts at the Charlestown prison, it has become necessary to use other accommodations than those which belong to the prison proper.4 The chief cause assigned for this increase is intemperance.

State Prison of Michigan.—It is said that 128 convicts are confined in the Michigan State Prison, and that the annual deficiency in the receipts ranges from $5,000 to $10,000. The Governor thinks that this sum is not more than a reasonable profit upon convict-labor, considering what is made in other State Penitentiaries within his knowledge! 79-

NOTICES.

No. 1.—Institutions for the Insane.

We have upon our table, the reports for the year 1848-9 of the Pennsylvania Hospital for the Insane, (the eighth,) of the Massachusetts State Lunatic Asylum, (the sixteenth,) of the New York State Lunatic Asylum, (the sixth,) of the Physician and Superintendent of the M’Lean Asylum for the Insane at Somerville, Massachusetts, (the thirty-first,) and of the New Jersey State Lunatic Asylum, (the second.) The first and fourth are on private, and the other three on a public foundation.

1. We suppose the first in our list combines as many of the substantial advantages for the treatment of patients of this class, as any institution in the world, and we are happy to know, that the prominent principles which have been recognized in its structure and economy, have been adopted in asylums of the latest date. The hospital has been quite full during the whole year, and yet the health of the patients has been remarkably good. The present arrangements are fitted to accommodate 200 patients, and provision will soon be made for receiving 20 more. It is certainly desirable to extend the benefits of such an institution to as large a number as can divide without diminishing the aggregate of good, but we quite concur with Dr. Kirkbride in the opinion, that a larger number than 220 could not be well received in one building, nor receive due attention from one medical officer—“a daily visit to all the wards, and a daily supervision of all the departments by its official head, being exceedingly desirable in every institution for the insane.” Seven of the seventeen deaths during the year, “occurred within a fortnight after the patients’ admission,” and only one had been more than a year in the asylum.

Of 1391 patients admitted to this hospital, 725 were under middle age, (35 years,) and 666 over. Of 773 male patients, the leading occupations were as follows:—farmers, 115; merchants, 66; laborers, 62; clerks, 50; carpenters, 30; shoemakers, 22; physicians, 19; seamen and watermen, 19; teachers, 17; tailors, 15; students, 15; NO OCCUPATION, 108.

Of 618 females, 66 were seamstresses or mantua-makers, and 64 domestics; store-keepers and attendants in stores, 12, and teachers, 9. Of single females, not pursuing a regular employment, 29 were daughters of farmers, and 29 daughters of merchants. Of the married, 57 were wives of farmers; 39 of laborers; 35 of merchants; 23 of clerks. Of the 618, 244 were single, 286 married and 88 widows. And of the 1391, 773 were natives of Pennsylvania; 91 of New Jersey; 197 from other of the United States; 340 from foreign parts, of whom 189 were from Ireland!

The most productive cause of insanity, as shown by the returns, is intemperance, 80 84; the next is mental anxiety, 69; grief for loss of friends, &c., 69; then comes the loss of property, 67; religious excitement, 56; domestic difficulties, 45, and unascertained, 563! In 907 of the cases, insanity appeared before middle age, leaving 384 only developed after that period.

The plan of detached cottages for a particular class of patients, continues to be an approved feature of the arrangements; and among the valuable improvements of the last year is the erection of a museum and reading-room on an eligible site. The building is 46 feet by 24, with a piazza, and the interior is furnished with interesting and valuable cabinets in natural science, as well as with newspapers, maps, periodicals, pamphlets, &c. On the interesting topics of society, instruction, and moral treatment, and the arrangements for heating and ventilation, much valuable information is furnished. The annual receipts and expenses are balanced with the sum of twenty-six cents, and the cost of each patient per week, including every thing, is $3 88. The amount expended on free patients during the year is $7,666 88. This is unalloyed charity.

2. The State Hospital at Worcester, (Massachusetts,) under the care of Dr. Chandler, was overflowing with patients, though fifteen new rooms were added during the year. The average number for the year was 404, and the number of dormitories 360 only. The number of foreigners in the hospital at the close of 1842 was 34, at the close of 1847 it was 121, and at the close of 1848 it was 150!

Dr. Chandler is of opinion, that it would not be judicious to enlarge the present hospital, but he would rather erect a new one, and separate the sexes. He thinks three small hospitals, in different sections of the State, would have some advantage over a large one.

The whole number of patients admitted from January 1833, to November 30, 1848, is 3084, of whom 1433 were discharged cured, 416 improved, and 272 died. Of the patients admitted last year, 154 were under middle age, and 255 above, showing a very different result from that which we have stated above at the Pennsylvania hospital. Of the whole number received at Worcester, the cause of insanity in 322 cases is supposed to have been intemperance; in 266 domestic affliction; in 233 religious views, and in 161 self-abuse. Hereditary tendencies to insanity were traced in 691 cases. Fifteen hundred and sixty-one were single, one thousand two hundred and thirty-two married, one hundred and ninety-nine widows, and eighty-six widowers. Dr. C. thinks it very clear that the sympathies and motives to action, which the domestic relations supply, are all but indispensable to keep the whole system of mind and body in a healthful state. If we understand the report of the trustees, the cost to the State of each patient is $2 33⅓.

3. The report of the New York State Lunatic Asylum established at Utica, was made to the Legislature, February 1, 1849. During the six years since it was opened, it has had an annual average of 335 patients. The whole number under care during 1848, was 877, of whom 495 were removed 81 at the end of the year. Judges of county courts have authority to send to the asylum any person who becomes insane and whose estate is insufficient for the support of himself and family; and the county is chargeable with the expenses of his restoration, if it is effected within the space of two years. Six hundred and twenty-nine of this class have been received into the institution since it was opened, and have thus been partakers of the most seasonable and appropriate charity which the public can bestow. These have been among the most hopeful subjects of hospital treatment, and would have suffered most for want of it.

The hospital is lighted by 280 burners from gas manufactured on the premises. The expense of work, fixtures, &c., was $5,346 48,—and this mode of lighting, is regarded not only as safer and more secure and pleasant, but as cheaper than the former mode. The price of board and hospital care, to patients who are chargeable to towns or counties, is $2 per week. Pay patients are charged from $2 50 to $4 per week, according to the accommodations they receive. The receipts of the year fully meet the current expenses.

Of 382 discharges during the year, 189 were men and 193 were women; 174 were cured, (viz., 87 men and 87 women,) and 84 were improved. There were 86 deaths. Some salutary cautions are given respecting the removal of distant patients to the hospital, especially in sudden and acute cases of insanity, and where they are in a weak or diseased state, and exposed to much suffering and fatigue on the journey. The opinion of a judicious physician should be taken before the attempt to remove them is made. Other and equally important cautions are given against delaying to send such as are clearly deranged, merely because they are monomaniacs, or not violent, nor very excitable. “Those cases of insanity that are most improperly and most frequently neglected and kept at home until they are incurable, are unattended by much excitement; those that come on very gradually, unperceived for a long time, excepting by the most intimate acquaintances,” (p. 20.)

Of the whole number, (2,014,) 1017 were men, and 997 women; 1213 became insane before middle life, and 801 after that period. Of the 1017 men, 437 were farmers and 133 laborers, 57 merchants and 51 scholars; and of the 997 women, 853 were employed at house-work, or were without any special trade or employment; 45 were school girls; 30 tailoresses; 24 instructresses; 21 milliners; 16 mantua-makers; 7 factory-girls; and 1 music-teacher. As to their civil condition, 957 were single; 937 married; 83 widows; and 39 widowers. 1417 were natives of New York, and 300 were from foreign lands.

Among the causes of insanity, are religious anxiety 178, loss of property 86, sickness and death of kindred 74, excessive study 51, intemperance 67, Millerism 36, disappointed in love 53, abuse by husband 28, blows on the head 24, fright 24, excessive labor 33, anxiety about absent friends, 18. Among the amusements of the patients, debates, tableaux, singing and 82 dancing, and theatrical performances. Of the whole number, (2014,) 251, (108 men and 143 women,) were disposed to suicide. This variety of insanity is by no means the most incurable. On the contrary, some of the most permanent and complete recoveries, are from this form of disease. From a register kept by Dr. Bingham for four years at this hospital, of all the suicides occurring in the State of New York, and noticed in the public prints, it appears that 74 cases occurred in 1845, 64 in 1846, 106 in 1847, and 88 in 1848.

In relation to hereditary insanity, the report shows that of the 2014 patients received at the institution, 637 are known to have insane relatives, and 273 are known to have had insane parents, or nearly 1 in 7. Dr. Brigham expresses the opinion that all other causes combined have not so much influence in producing insanity, as the transmission of the disease from parents to their offspring, p. 36. In other words, that the exciting causes would be inadequate to produce insanity, but for the inherent constitutional tendency to it. Dr. B also declares his belief, that there is more insanity in this country than in any other, especially in the northern and eastern States, and that it is fearfully on the increase, p. 38.

Some valuable suggestions respecting the prevalent causes of insanity and the means of obviating them, are thrown out, and are entitled to the earnest and studious regard of parents and teachers, as well as of professional circles.

4. In the M’Lean Asylum there were received during the year 1848, 153 patients, (71 males and 72 females.) Dismissed, 155, (87 males, 68 females,) of whom 82 were restored, (55 males, and 37 females.) There were 23 deaths during the year. The total number of patients received from 1837, is 1696. The average of the first six years of this term was 115, and the average of the second six years, was 166. Of the whole number, 884 were discharged as cured, and 184 died. The report enters at much length into a history of the construction of the buildings, and of the recent alterations, amounting almost to a reconstruction of the largest and most modern building on the male side.

In conjunction with these alterations, a new heating and ventilating apparatus has been introduced, and as we know the very great solicitude that is felt in respect to this point by those who are commissioned to devise the plan and oversee the construction of such edifices, we extract so much of the report as relates to it.

“Every room has a hot air and a foul air flue opening in it, the entrance being protected by an ornamental grate, and the galleries have five or six flues of each kind opening in them, in order that the diffusion may be general. The flues are twelve by twelve, and twelve by nine inches in size.

“The pure supplies of air are received into a large reservoir or space in the basement between the walls forming the sides of the galleries above, and in which both kinds of flues are built. This main air channel has an area of at least fifteen feet, and terminates externally in a low tower, fully exposed to the passing air.

“The heater is a vertical boiler on the tubular plan, about eight feet in 83 height and thirty inches in diameter. The fuel (anthracite) is placed within the boiler, and that is so placed within the reservoir before named, that only a small part of it, required to receive the fuel, is left outside.

“On each side of the reservoir of air, is a construction consisting of six longitudinal chambers one above the other, the whole length of it. The lower three, separated from the upper three by a brick arch and from each other by partitions of wood, are the ventilating channels receiving at intervals the flues from above and finally terminating beneath the exhausting shaft, to be described.

“The upper range consists of the three channels for hot air. Both of these ranges are so arranged that a channel answers to a story above, and thus each story of the house has its heating and ventilation entirely independent of any other.

“Each hot air channel has a pair of four inch cast iron water pipes connected with spigot joints and iron cement; one end of each comes off the boiler near the top, and the other or return end, enters the boiler on the other side, near its bottom. The hot and cold ends of each pair of pipes are on opposite sides, in order that the average heat at any place where the air is delivered above may be the same. The three pair of pipes receive and return their water, through tubes reduced to two inches diameter, as recommended by Mr. Hood, the highest authority on this class of subjects, and at the same level. The degree of curvature essential in this form of connection, was expected to make a difference in the velocity of the circulating fluid, and consequent temperature at which the water would be found in the different ranges. Practically no material difference is remarked. The radiating pipes cross at the bottom of the cold air reservoir. The air flows in to impinge upon them through arched spaces left in the front of the channels, looking towards the reservoir. Every flue for hot or foul air is commanded by a slide readily approached below.

“The heated air is always admitted near the ceiling to obviate any contamination at its point of delivery. The foul air is drawn off near the wash-board, any impurities there deposited being drawn down, but not into the room. The diffusion of the air, where an adequate exhaustive power is provided, is also much favored by being thus turned in its course, and the lower stratum is not uncomfortably cool to the feet,—a common objection to the usual method of receiving and withdrawing the supplies.

“The foul air channels into which the flues from each story open, do not come together, until just as they pass under the foot of the ventilating shaft or chimney, which through the agency of a cast iron pipe, a foot in diameter in the middle of the shaft, running up fifty feet and receiving the smoke from the furnaces, constitutes the moving power. This shaft is built of brick in a useless angle where the two buildings approached each other, and has an internal diameter, it being a circle, of about six feet at its basis a few feet below the cellar floor, and terminates in one of the original chimney stacks at the corner of the foundation of the dome, height of about seventy-five feet, and with about one half its size at bottom. A deviation of a few feet from the perpendicular was inevitable at about two-thirds its length. It is carefully plastered or pargetted within. As its upper opening was commanded by the spherical dome, endangering the regurgitation of wind at certain times, it was surmounted with a form of chimney-cap, figured in Mr. Tredgold’s works some forty years since, and being essentially that recently introduced into considerable use in this vicinity.

“As a cure for smoky chimneys, this cap has considerable efficiency, but is regarded as of very trifling moment as for as suction or exhaustion from below is required. For its power is too feeble at all times, for such an amount of ventilation as an insane hospital requires, and depends wholly on the fluctuation currents of external air. If the upper range of bricks had been laid with a bevel upwards, and a plain plate of metal placed on four 84 short legs a few inches above, it would have answered equally well and at a tenth of the cost. The rarefaction produced by the heat radiated from the central iron smoke pipe occasions a partial vacuum, instantly filled from the rooms behind.

“The whole length of cast iron hot water pipe is about 600 feet, and with the portion of the heater within the main air cell or reservoir, and the smaller wrought iron tubes connecting the extremes of each of the six pipes with the upper and lower ends of the boiler, constitutes a radiating surface of over 700 square feet. The effective fire surface of the boiler is probably about 30 superficial feet, and about 60,000 cubic feet of space above in the three corridors, and the rooms opening upon them, are to be heated.

“The amount of anthracite consumed in the twenty-four hours of our coldest weather, is not far from 400 lbs.; the water in the extremities of the pipes receiving it from the heater, rarely exceeds 180° F. and falls off about 20° at its point of re-entering.

“All these expressions, however, are quite indefinite without taking into consideration the extent of change required in the air. It is obvious that by closing the damper which commands the ventilating shaft, the relations of temperature of the air, and of the pipes would at once sympathize. With the active power of the shaft, it is certain that any possible amount of ventilation may be attained. Indeed, it is probable that the present shaft is equal to the demands of the remainder of the male wing in addition. The escape of the steam pump is injected into the centre of the ventilating space, giving us, for some hours daily, the aid of this recently adopted and exceedingly efficient means of ventilation.

“While a sufficient time has not yet elapsed to stamp our apparatus with the seal of experience, the only test of such appliances in the mechanical arts, yet we are authorized to declare that, as far it has been tried, it promises all that could be desired in supplying a full, certain, and manageable amount of air, in its highest hygienic conditions.

“The cost of getting up a complete system of hot-water warming and exhaustive ventilation in a country where few examples or approximate specimens are to be found—in a climate which nullifies all European experience—where all parties, suggesters and mechanics, are obliged to acquire a certain experience as they go along, must be much greater than when this subject shall be well understood and generally adopted, as it eventually cannot fail to be. Independent of making the flues and ventilating chimney, items which in new undertakings would naturally come under the head of construction account, the expense of our undertaking will fall considerably below a thousand dollars, and we are satisfied that with the experience acquired in this single trial, it could be gone over again at a very considerable reduction of cost.”

We have left ourselves but a finger’s breadth of room for a notice of the report of the N. Jersey State Lunatic Asylum at Trenton, rendered December 1848. It is accompanied by a view and ground plan of the buildings, which were opened for patients on the 15th of May last, under the superintendence of Dr. H. A. Buttolph. They are designed for the accommodation of 200 patients, and in their general structure and arrangement accord with those of the Pennsylvania Hospital already noticed. The asylum occupies a most eligible site, about two miles north-west of the public buildings, surrounded by a choice farm of 111 acres, with an unfailing supply of fine soft water, and a beautiful grove in the rear, thus affording abundant room for hospital purposes, and embracing every variety of scenery and spacious pleasure grounds for the use of the patients. The various fixtures for warming, ventilating and lighting, as 85 well as the arrangements for cooking, washing, bathing, &c., are after the most improved models, and are described with interesting and intelligible minuteness in the report, an examination of which we would recommend to all who are seeking information on the subject. The number received during the year was 86, of whom 83 remained in the asylum at the date of the report. A large proportion of the number received were chronic cases, which are generally very numerous at the opening of such institutions. Of the 86, 27 were under middle age; 52 were single and 30 married. Of their occupations, 22 of the men were farmers, and 16 of the women were house-keepers. An hereditary tendency to insanity was traced in 18 of the 86 cases, or about as 1 to 5.

SUMMARY OF PRINCIPAL FACTS.

Admitted during the year. Discharged or died during the year. Remaining at date of report. Cured. Deaths.
Pennsylvania, 215 203 200 120 17
New Jersey,5 86 3 83 3 0
New York, 405 382 495 174 866
Massachusetts, 261 246 409 136 30

Virginia.—The Eastern Insane Asylum of Virginia is established at Williamsburg, and the Western at Staunton. At the former were received in 1848, 34 patients, 15 males and 19 females. The number under care, October 1, 1848, was 165. Aggregate of inmates during the year 198; discharged 6 males and 10 females; deaths 17, (8 males and 9 females.) Spacious additions to the buildings are now in progress, a portion of which will be appropriated to colored patients. The receipts of the year were $41,350 64, and the expenditures $29,716 89.

At the latter institution were received during the year ending October 1, 1848, 70, (39 males and 31 females,) making an aggregate of 277 under care during the year. There were discharged in the same time 50 patients, of whom 40 were recovered, (21 males and 19 females,) and 7 more or less improved; 2 were unimproved, 1 eloped, and 22 died.

Among the causes assigned for insanity, we notice hard study is given in the case of 11 males and 1 female, intemperance 16 males, and domestic affliction 6 males and 18 females. Seven thousand dollars have been expended lately in new buildings. 86

No. 2.—The precise present character of transportation explained, with suggestions by Ignotus.

We observe in our English papers a brief notice of a pamphlet of fifty pages, published in London a short time since, advocating some important modifications of the transportation system. As we regard the system itself too near extinction to render any modifications of it particularly valuable or interesting, we notice the publication only for the sake of what the author says about convict-separation. We take, by piece-meal, the whole extract of the English reviewer, venturing a brief comment on some passages.

“This sort of confinement (separation) has, of late years, been extravagantly commended by some, and as loudly reprobated by others. The truth seems to lie between the two extreme opinions. (A position which truth has long been supposed to occupy.) We are led, by our own observations, to value it but little as an active agency for reforming criminals, but to allow it a high place as auxiliary, in general, to that which is reformatory in the highest degree, Christian instruction in the hands of Christian men.”

We are not aware of any system of prison discipline that possesses or pretends to possess an “active agency for reforming criminals,” independent of Christian instruction. We imprison men to punish them, and we think the “active agency” of punishment is quickened by separation. And hence we hold, that apart from reformatory influences, separation during imprisonment is preferable to association, considered merely as a punishment. When, however, we introduce the agency which is “reformatory in the highest degree,” (to wit, “Christian instruction in the hands of Christian men,”) the comparative fitness of the two modes of imprisonment to receive and employ it, is at once revealed, and, as “Ignotus” says, the separation of the convicts is then seen to occupy a high place as an auxiliary to its influence.

“The separate system is free, certainly, from many things which impede the reformation of criminals; from the perpetual distrust and perpetual punishment which are necessary to enforce silence in association, and from the grosser vices of the older style of prisons, mutual contamination and hardening in villany. It allows a return to feelings of self-respect. It removes all possibility of combination for evil purposes, and prevents the exertion of that fascinating influence which the practised villain exerts so destructively over the novice in crime. It protects the penitent, in his first desires and efforts to return to God. It is something, also, as regards others less hopeful, even for a time, effectually to break the chain of their evil habits, and to compel the mind, however reluctant, to turn inwards and reflect, until the dormant powers of conscience be aroused. Beyond this it does not seem to go in producing amendment; and we are persuaded, that if the benign and saving influence of our divine religion were withdrawn from a prison on the separate plan, not a single inmate would ever leave its walls a whit more reformed than from any other.”

We think the friends of separation could scarcely ask for a more favorable exhibit of its advantages than Ignotus gives. It certainly places that system far in advance of any and all others as the basis of reformation. 87 And while we readily admit that it is but a basis, and that higher and better influences must be relied on to make it efficient as a means of reformation, we cannot agree with the author, that convicts from a separate prison are not likely to leave its walls a whit more reformed than convicts from Newgate or from Blackwell’s Island. To keep bad men apart must always, under all circumstances, be more conducive to their reform, than to suffer their intercommunication. If “the benign and saving influence of our divine religion,” were withdrawn from the city of London or New York, it would become a pandemonium; but no one would say, that if each man, woman and child, were separated from every other man, woman and child by an impassable gulf, the degree of corruption would not be essentially reduced. Close association breeds the plague of cities—comparative separation keeps the country clean and wholesome. The analogies of the moral and natural world are very obvious in this respect.

“If it be thought, from what has been written of late years on the subject, that a greater efficacy should be attributed to separate confinement, let it be borne in mind, that cotemporaneously with its adoption in any prison, there has been very much greater care taken than ever used to be in the selection of officers to superintend the discipline, and to convey moral and religious instruction to the prisoners. Wherever Christianity has been brought to bear upon criminals, in its real power and blessedness, good has been accomplished under the most untoward circumstances; sinners have been brought to Christ and salvation; and the mass, if not converted unto God, have been marvellously civilized. This was manifested by the success which followed the self-denying labors of Mrs. Fry, and other pious persons in Newgate; of that eminent man Dr. Browning, in so many convict ships; of Sir Edward Parry, who labored like a missionary amongst his assigned convict servants, at Port Stephen’s; of Colonel Demaresq, also acting in the same spirit, under the same circumstances, at St. Helier’s and St. Aubyn’s; and of Sarah Martin, in the gaol of Yarmouth, of whose unwearied and blessed labors the Government Inspector, Captain Williams, makes such honorable mention in several reports. The superior mind of a person invested with authority, may exercise a most salutary influence upon any class of human beings, but Christian doctrine, and Christian character consistent enough to stand the scrutiny of the bad, accomplish greater things; and the lower any are sunken, the more commanding is this influence upon their minds.”

We presume the prevailing sentiments of this passage, will meet a hearty response from all our readers. We are in no danger of attributing too much efficacy to the power of the truth over the mind when it has access to it. It may be questioned, however, whether its influence is not greatly hindered, and sometimes completely obstructed, by the debasing vices of convicts. We are not quite prepared to admit, that the lower the human mind sinks, the more commanding is the influence upon it of Christian doctrine and Christian character, though we would regard no case as beyond the reach of such an influence.

“The combination of pious Christian zeal with good judgment and a knowledge of human nature, in the head of any prison establishment, we are convinced is more likely to lead to the reformation of its inmates, than any system of discipline without it. It has the blessing of God, “without whom 88 nothing is strong, nothing is holy, nothing is perfect.” But, whatever may be thought of the influence of separate confinement, as a means of reformation, there should be no doubt about its utility as a punishment, if not carried to an extreme. It is a most severe one, certainly; but this is not without great advantages, even in an economical point of view; for in proportion as it is severe, the sentence may be abridged, and its heaviest pressure is upon those who deserve it most. Criminals, of all men, can least bear to be alone. A thoroughly bad man, by himself, is the greatest coward, and without his accustomed stimulants, the most wretched of beings; we have no hesitation, therefore, in stating, that such a man would prefer even the scanty food, the vermin and the sloth of such a place as Newgate, where he might gamble for his supper, learn new tricks or instruct the novice, sing, play, and quarrel by turns in the night-room, than the very best treatment and the most abundant diet of a prison on the new plan. The reformatory character of such a gaol is, to such persons, an object of real terror. A visiting justice of the gaol of Reading, stated before Lord Brougham’s Committee (p. 478-9,) that full 50 per cent of the vagrant class had actually fled out of Berkshire, lest they might be immured in so horrible a place. It is however, an expensive plan for the treatment of criminals; its individuality and severe pressure creating a necessity for better occupation of the mind and body, a more liberal diet and a greater number of teachers than where prisoners are associated.”

We regard the features of separation which Ignotus delineates in the foregoing passage, as most highly commendatory of it as a means of discipline and reform. This better occupation of the mind and body, a more liberal diet, and the greater number of teachers, which become so needful, indicate just what the desire for wholesome food does in a convalescent patient. His vices had made wholesome occupation of either mind or body irksome; and the attempt to teach him good knowledge was to annoy, if not to offend him. If separation from the haunts and fellowship of the wicked makes him long for what he once loathed, the public are “penny-wise and pound-foolish,” if they grudge the supply. It is the token of returning health and should be hailed with joy and gratitude.

No. 3.—Statistics of Truantry and of Juvenile Vagrancy in the City of Boston.

By the kindness of Mr. Tukey, City Marshal at Boston, we are furnished with an interesting report, which he prepared at the instance of the late efficient Mayor, (Mr. Quincy,) respecting the number, character, social circumstances, &c. of the street-children, in habits of vagrancy, wandering about and contracting idle and vicious habits. We draw largely from this interesting document, and earnestly wish the like investigation might be made into the condition of other cities in this respect.

The whole number of the class of children designated between six and sixteen years of age, is 1066; arranged as follows:

Male children, 882
Females, 184
Children of American parents, 103
Children of Foreign parents, 96389
Children who belong to some school, but are truants, 106
Boys regularly employed in Bowling saloons, 139
Children who do not attend any school nor have any lawful calling, 821
Children who do not attend school for want of clothing, books, &c. 129
Children of widows, 238
Children with fathers but no mothers, 29
Children, orphans, 54
Their ages are as follows:
Six years of age, 39
Seven years of age, 53
Eight years of age, 79
Nine years of age, 77
Ten years of age, 121
Eleven years of age, 111
Twelve years of age, 176
Thirteen years of age, 141
Fourteen years of age, 143
Fifteen years of age, 80
Sixteen years of age, 56

“My opinion is, that of the whole number, from eight to nine hundred (from neglect and their bad habits) are not fit to enter any of our present schools.

“From the best information which I can obtain, I am satisfied that the whole number in the City at the present time, (including the above number,) is not less than fifteen hundred of the same class as those described.

“And I earnestly call your attention to them, and the necessity of providing some means to have these children properly brought up, either at public or private expense; for I am satisfied that it will cost the State and City more for Police, Courts and Prisons, if they are suffered to go at large, than it would, to take them now, maintain them and make them useful citizens.

“The State Reform School at Westborough, will be a great benefit. Out of fifty-eight boys that have been sent there, thirty-four have gone from this City. But I am of opinion that the law is defective that waits until the child ‘shall be convicted of any offence known to the Laws of this Commonwealth and punishable by imprisonment’ before he can be sent there.

“Very few parents are willing to complain of and testify to the bad conduct of their children, knowing that such testimony will deprive them of their services.

“I am satisfied that the system heretofore pursued by the City Government of licensing minors to sell papers, and other small articles, is an injury to them.

“During the year 1846, out of 112 minors arrested for larceny, and carried before the Courts, 46 were news-boys. During the year 1847, out of 112 minors, 58 were news-boys.

“During the year 1847, out of 30 licensed, six were brought in for larceny during one week.

“There is evidently a great increase of crime among minors. The Police books show that the number arrested and brought in, is more than one hundred each quarter.

“The following extract is from the City School Report for the year 1847.

“‘Does the instruction provided by the City reach all those persons for whom it is intended? This question suggests itself to every one who observes the apparently great number of children, at large, in school hours, in almost every part of the City.

“‘It is not difficult to find out what are the occupations of many of these children. They are hawkers of papers, or sellers of matches,—most of the 90 time occupied in quarreling and gambling. They are beggars, male and female, strolling from street to street, through lanes, by-ways and alleys, practicing the elementary lessons of pilfering, lying, deception and theft. They may be seen wherever wooden structures are in the process of building, repairing, or tearing down;—seeking for fragments of wood to which they evidently feel they have a very questionable right. They are the loafers on wharves and in all the modes of juvenile vice. Are these children in the way to become useful citizens or happy and respectable men? Are they not growing up to be the occupants of jails and almshouses? Are they not in a course of education for worthlessness and crime?

“‘Let us see what answer the records of the courts of justice make to these questions.

“‘There are, on an average, 74 inmates of the House of Reformation; nearly the same number in the school on Thompson’s Island; and, for the year ending in November last, 456, under age, had been inmates of the jails.

“‘In reference to providing instruction for this great mass of uneducated children, our system is not defective. Sufficient provision is now made for the instruction of those children who have passed the age at which they are admissible into the primary schools, and who are not qualified for the grammar schools. The number of this class is rapidly increasing, and is likely to increase still more. Our system was contrived and adapted to a small city, peopled by persons born in New England, and always enjoying and disposed to avail themselves of the advantages of the free-school system of these States. But some (no?) provision has been made for the vast accessions to our population by immigration from foreign countries of persons of every age, and of every condition of ignorance. Our system of government supposes educated citizens; and will not be safe unless our citizens are more or less educated. Now there are great masses coming in upon us who are not educated, except to vice and crime; the creatures or the victims of the justice or the oppression, or the over-population of the old world. For the education of these, adult and juvenile, not only must provision be made, but means must be used to render the provision effective. It is not enough to say that provision is made for their education, if they will avail themselves of it at a proper time. Unless they are made inmates of our schools, many of them will become inmates of our prisons; and it is vastly more economical to educate them in the former than to support them in the latter. The annual cost of educating an individual at the public schools is from six to twenty dollars. The annual cost of the support of an individual in the House of Reformation, the cheapest of all such institutions, is forty-four dollars, and in the House of Correction probably not less than one hundred dollars; and in this estimate is not included the great expense of the administration of criminal law, much of which might be prevented by the proper education of these children.

“‘It is a defect in the organization of this (School) Board, that there is now no person connected with and acting under direction of the Board, to ascertain what children of the legal age are not in the schools, and to use measures to bring them there. This Board is the only one which has, officially, a knowledge of the numbers of children in the schools and of those who ought to be there. It is the one whose duty it is to provide means for the education of all the children. It would be well if it could have authority not only to use means to bring wandering children into the schools, but to provide for the instruction of those portions of the adult population who are without, and who desire elementary instruction,—that is, instruction in reading, writing and accounts.’

“I know of no one thing,” says the City Marshal, “that is so much needed as a proper home for idle and vagrant female children, the ascertained number of which class is 184. There are, undoubtedly, 300 of the 91 same character now in the City, they may be seen at the entrance of every public building and every great thoroughfare, peddling small articles or begging, and insulting every person who refuses to buy, or give when asked. Many of them have been so long neglected, that they are familiar with crime in its worst forms, but against whom it is difficult to procure evidence, and when procured, the only place they can be sent to, is to the House of Correction or House of Industry for short terms, and then they are suffered to go at large without a proper home or friends to care for them.

“In regard to habitual truants from the schools, I am satisfied that the powers of the Courts, and the City authorities, are entirely inadequate to meet the evil. The late Mayor directed me to detail some officer whose whole duty it should be to look after the truants that were reported to him, by the masters of the several schools.

“From the report of the officer detailed for this purpose, I make the following extract:

“‘During the year that I have had the charge of Truants, I have been called upon by the teachers of the Grammar and other Schools, to nearly 300 truant and idle children; and for want of some system by which to be governed, my practice has been as far as possible adapted to the circumstances of the case. I first call upon the parents, find out their condition and the character of the boy complained of, in order to know how to proceed with him; admonish him, and always in the first instance take him back to the school to which he belongs. In many cases this course has been sufficient. If called again to the same boy, by the consent of the parents, I have locked him up for a few hours, and given him to understand that a complaint against him would remain on file to be proceeded with if he again offends. This, sometimes, has been enough, but not often. After taking a boy to School two or three times, and he finds that nothing further is done, the Police-man’s badge and staff have no terrors for him. The reason, I think, is this. The law does not reach his case—the Courts say he is not a vagrant, because he has a home—and he is not a stubborn and disobedient child within the meaning of the statute. He is disobedient only so far as he is a truant; and there is no law against truancy. I have been into Court with a number of such cases and did not succeed in sustaining the complaint. The decision was almost fatal to the boy, and a great injury to the School to which he belonged. The only course left for us after this, was to watch the boy until we could arrest him for some trifling offence known to the law, and have him punished, which seemed to be necessary for the good of the boy, as well as the School.’

“The above statistics have been obtained in the following manner. During school hours the officer has visited the wharves, public thoroughfares, and all other places where these children congregate, and by kind treatment and persuasion, learned their names and residence, then gone with them to their homes and ascertained their condition, and that of their parents, a record of which is now in this office, and to which additions are daily made.”

This brief history of juvenile vagrancy in the city of Boston, whose school system has been so long and justly regarded as her chief glory, will not surprise those who are familiar with scenes at the wharves, railway-stations and steamboat landings of New York, Philadelphia and Baltimore. Innumerable specimens of the same class of young renegades may be seen also at the doors or in the vestibules of public houses in the large inland towns; and unless some mild compulsory process is devised to form them to better habits, it is certain that a severe one will be demanded to protect the community against their violence and depredations. 92

No. 4.—The London Christian Observer’s notice of Rev. Mr. Field’s work on the advantages of the separate system of imprisonment.

In our last number we inserted, entire, an article on Mr. Field’s work, from the “London Medical and Chirurgical Review.” The February (1849) number of the London Christian Observer devotes ten or fifteen pages to it, and inclines “to agree to a considerable extent in the author’s opinion, that the separate system is superior, not only to every other system that has hitherto been tried, but also to any that shall be, or can be hereafter devised.” This is rather more than we should be willing to say of any human device, but we are glad to see an English periodical of so much influence and reputation committing itself so heartily to the right side.

The “Observer” has strangely fallen into the notion, that absolute solitude without labor or instruction, was ever adopted as a system of discipline in the United States. He speaks of “our good friends in the United States,” as having run into the extreme of “entire solitude for six or ten months together in prisons of the most wretched description,” but when the effects were seen, “the system was abandoned at once.” He expresses thankfulness, that this dreadful system was never tried in England, but that they have been permitted to learn better by the experience of their neighbors. There is no doubt, that studious efforts have been made by the opponents of separation in our country to confound it with solitude, and to give the impression, that whatever evils are imagined or proved to result from the latter, are necessarily incident to the former. But we should have looked for a little more discrimination in the Observer, and for evidence of more thorough knowledge on a subject of so much interest. Indeed, we might almost suppose, that the needful supply of knowledge and discrimination is at hand, when the inquiry affects the good repute of the “sea girt isle,” and only fails when the institutions of “young America” are presented for review.

“We come now,” says the Observer, “to the separate system as we have it amongst ourselves, and we must request our readers to bear in mind, that this system is essentially different from the Solitary, properly so called—different in its objects, in its working, in its effects. The separate cell is but the sick room, in which the morally diseased is put under treatment for such time as his case requires. The solitary cell is (or rather was, for it no longer exists among civilized nations) the grave; where the patient is left as being past treatment and without hope of recovery. Yet the two methods have been, and are confounded, and the failure of the one, with all its attendant circumstances of horror, is used blindly or unscrupulously as an argument against the other.”—p. 129-30.

It is this “blind or unscrupulous” confounding of solitude and its effects, with separation and its fruits, that constitutes one of the crying sins against humanity, for which we think the anti-separatists will be called to account.

“We are sorry that we cannot follow Mr. Field through his description of the system of instruction, and its effects on the prisoners in general. His work abounds in examples of the ignorant instructed, the profligate reclaimed, 93 the hardened convict subdued, the weak-minded set firm in good principles; and almost all thankful for the discipline they have undergone, and setting out afresh in this world of trials, with, at all events, new strength and better principles. Mrs. Fry, indeed, regarding man as adapted for a state of trial, argued against the system7 as one that takes the convict away from trial altogether; but surely, there are stages and states in the moral life, when the discipline of solitude and reflexion is absolutely required; just as the body, though its intended sphere of action may be the air and the light, may absolutely require total seclusion from both, must be placed in bed, and take sharp medicines, instead of taking exercise and facing the weather. To say nothing of the fact, that a crowded prison-yard can scarcely be regarded as a fair field of probation for any man.

“Altogether, we regard the present state of things with respect to this whole subject as affording a ground of great encouragement and thankfulness to God; and as opening prospects of large social improvement both at home and in the Colonies; for the wretched system of transportation, the plan of peopling new lands with the outcasts of the old, seems to have received its deathblow from the introduction of wholesome discipline at home. There are a few minor differences to be adjusted regarding the treatment of convicts, the length of their separate confinement, and the mode of disposing of them for the rest of their sentence; but the principle is now fairly admitted, that the prison is to be a place of severe moral and religious discipline. The office of a gaol chaplain, instead of being the most loathsome and repulsive that a clergyman could hold, is now a work full of interest and promise and hope, bringing often a speedy return for labor. Sarah Martin, the pious needlewoman of Yarmouth, who passed her life among the wretched inhabitants of the gaol, would indeed have rejoiced, if she could have accompanied as we have done, the zealous Chaplain of one of these new gaols along the clean, light, well-aired corridor, and entered with him into one cell after another, where the prisoner welcomed him cheerfully and respectfully, repeating his few verses of psalm or hymn—a voluntary task—and listened thankfully for the kind admonition or encouragement of perhaps the first friend he ever knew. It seems as if God had raised up men on purpose for the work. We are personally acquainted with some Gaol Chaplains, and have read the Reports of many, and believe, in most cases they are men of energy, discernment and piety. If we have a fault to find with them, it is, that from their experience of visible effects speedily and uniformly produced on those who are under their charge, they come to speak and write as if the reformation of a sinner were a matter of certainty, provided only a sufficient time is allowed. We are aware, that this is only an apparent error, for no man would be more ready than Mr. Field to acknowledge the absolute necessity of the power of the Holy Spirit in any work of genuine reformation.”

No. 5.—Kentucky State Penitentiary.

A friend has kindly forwarded to us a copy of the annual report of the keeper, clerk, &c., of the Kentucky Penitentiary, for the year 1848. It is located at Frankfort, and as the reports indicate, is administered with much success. We have noted a few items of general interest.

It was formerly the custom to shave the head of every convict once a week. This humiliating process was required by law, but, at the suggestion of the present keeper, it was so modified, as to leave it to the discretion 94 of the keeper to shave or not to shave. The good effects of the measure were at once manifest. We are not told to what extent the practice now prevails, but are left to infer that it is only adopted as a mode of punishment. There can be no doubt, we think, that all methods of humbling or subduing a convict which savour of vindictiveness, or occasion a needless violation of a natural and proper self-respect, are to be deprecated. External badges of infamy and degradation may be needful sometimes as a precaution against escapes, or for the recapture of convicts, but it is a great advantage to be able to dispense with them.

The average number of convicts in confinement at the date of the report, was 161, and the clear profits upon their earnings during the year, were eight or nine thousand dollars. The bagging business has been found dull, and very extensive preparations are now made for coopering.

The number of convicts received during the year ending December 1, 1848, was sixty-nine, and the number discharged by pardon during the same time was THIRTY-THREE, or nearly half as many pardons as commitments. This number is exclusive of five who were pardoned the day before the expiration of their sentence, to restore them to citizenship. All the convicts are males, and only 16 of the 161, are colored; and 128 were convictions of crime against property, and only twenty-five of the sentences exceed seven years. Nine of the convicts are from Ireland, and nine from other foreign countries, leaving 143 native Americans; 97 are under 30 years of age; 114 habitually or occasionally intemperate; 47 utterly destitute of any degree of education; and 80 were never married. From a review of the prison history for a period of 13 years, it appears that the largest number received in any one year, was 81, (1842,) and the smallest, 49, (1837;) the number of convicts received during the 13 years from the 88 counties of the State, was 877, of whom 383 were from the county of Jefferson alone, of which Louisville is the shire-town. Of the 877 convictions, 551 were for crimes against property, or against the person for property. Of the 877, only eleven were females. The number of cases of disease occurring during the year, was 244, of which 128 were cured. Days lost by sickness during the year, 1664.

No. 6.—An Inquiry into the Alleged Tendency of the Separation of Convicts, one from the other, to Produce Disease and Derangement. By A Citizen of Pennsylvania. Philadelphia, E. C. & J. Biddle, 1849.

The questions involved in this inquiry and the elaborate manner in which they are handled in it, forbid a short or superficial notice of its contents; and hence we must ask for farther time to enable us to study, compare and collate, before we attempt to analyze the work for the use of our readers. If, however, in the mean time, they should choose to read and think for themselves in the premises, by a careful perusal of this “Inquiry,” we are safe in saying that the time will be well spent and the labor fully rewarded. 95

No. 7.—New York Eye and Ear Infirmary.

The report of this humane institution for 1848, (the 28th of its existence,) states that there were received during the year, 1,945 new patients being 565 more than were received in 1846. There remained under treatment, January 1, 1849, 129; and of 2,074 prescribed for during the year, 1,370 were cured, 147 were relieved, 33 declined treatment, 11 were discharged as incurable, the result of 34 were not ascertained, and 220 remained under treatment. Diseases of the ear, 130.

Of the patients, there were born in the United States 827; in foreign countries 1,118!

A free institution for the blind, is about to be opened in Jacksonville, Illinois. The State supports it by a special tax.

No. 8.—Shelter for Colored Orphans.

For thirteen years, a quiet and useful charity, known as the “Shelter,” has been provided for a portion of the colored orphan children of Philadelphia. At the date of the twelfth report there were 56 children under care, and twelve were received during the year; while 9 were apprenticed and 3 died. There were in the house, January 1849, 53 children. Dr. Casper Wistar attended and administered to the institution gratuitously, during a season of severe sickness from the measles, in the progress of which thirty-six were under medical care!

No. 9.—Paupers and Prisoners in Cincinnati.

It is stated in the public prints, that the admissions to the Cincinnati city hospital in the year 1848, were over 3000; and two-thirds of them foreigners. In the number were 152 lunatics.

“Admissions to the Jail, during the year, 776, of whom 742 were intemperate, 17 under 18 years of age, and 66 females. Of these 776, 35 were sent to the Penitentiary, and 741, ‘turned loose, without friends or employment, to prey upon society again—a portion of them serving awhile in the Chain-gang first.’”

No. 10.Insane Asylum in North Carolina.

We understand that the act establishing a hospital for the insane at Raleigh, provides for a tax of one and three-fourths of a cent on every hundred dollars valuation of land, and five and a quarter cents on the poll, to be levied for the space of four years, to raise the money to construct and furnish the building—the County Courts during the said time to have power to make a proportionate reduction of the poor tax in their respective counties. 96

No. 11.—Corrupt Police.

In a charge lately given by one of the Judges of the Court of Quarter Sessions for the city and county of Philadelphia, some passages occur, the implication of which is very far from being creditable to the police-gentry, and is, moreover, rather startling to the lovers of peace and security.

“So long as there is collision between police officers and criminals, crime will continue, and it will be difficult to suppress it. If police officers will suppress evidence against the perpetrators of offences; if they will associate and correspond with criminals, and participate in the fruits of robbery, crime will continue to increase, because the chances for escape are great. In some of the Incorporated Districts it is believed, the police force is efficient and useful.”

This makes the whole matter so vague as to aggravate, rather than alleviate apprehensions.

In the same charge, the magistrate is represented as saying, that “if there were no pardons there would be but few convictions.” Is it possible that the indulgence of executive clemency is so frequent as to make juries careless or forward to convict from the impression that their verdict will be reviewed under an application for pardon?

We confess we had no idea that the exercise of the pardoning power had been such, either in character or extent, as to warrant a statement like the following from the same source:

“If any one will look at the records of conviction throughout the State for the last fifteen years, and then at the list of pardons, and the history and convictions of the convicts, it will be found, that rarely has a criminal served out the period of his sentence, if he were a person of wealth or previous influence, or who had wealthy connections, or friends and relations of great political influence. While no one can doubt that every Executive has been honest and sincere in the exercise of this power, yet the unseen effect of money and political relations enables the convict to surround the governor with influences which he does not resist.”

Can the yielding to such influences be regarded as consistent with “honesty and sincerity” in the exercise of the Executive prerogative?

“The principles on which pardons are often obtained, are, in my opinion, incorrect. The Executive generally hears but one side of the case—the one presented by the criminal—while the Court and Jury hear both sides. The case of the prisoner is always strongly stated in his favor, and that backed by the influence of friends or hired agents, and the incautious signing by citizens of a petition for pardon, usually produces the result of a liberation from that sentence.

“Nothing tends more to the suppression of crime than the certainty of punishment, no matter how short. Let people once be convinced that criminals will be punished as the law provides, and we should find the number of crimes rapidly diminishing.

We think much of the principle here asserted, but it is perhaps made to carry too much weight for its bottom. 97

Article II.—The President, and in his absence one of the Vice-Presidents, shall preside in all meetings, and shall subscribe all public acts of the Society. The President, or in his absence either of the Vice-Presidents, shall moreover have the power of calling a special meeting of the Society whenever he shall judge proper. A special meeting shall likewise be called at any time when six members of the Society shall concur in requesting it.

Article III.—The Secretaries shall keep fair records of the proceedings of the Society, and shall correspond with such persons and societies as may be judged necessary to promote the views and objects of the institution.

Article IV.—The Treasurer shall keep all moneys and securities belonging to the Society, and shall pay all orders of the Society or Acting Committee, signed by the President or one of the Vice-Presidents, which orders shall be his vouchers for his expenditures. He shall, before he enters upon his office, give a bond of not less than two hundred pounds for the faithful discharge of the duties of it.

Article V.—The Acting Committee shall consist of the President, two Vice-Presidents, two Secretaries, two Counsellors, Treasurer, and six [now ten] other members, three of whom to go off at the meetings in the months called January and July. They shall visit the prisons at least once a month, inquire into the circumstances of the prisoners, and report such abuses as they shall discover to the proper officers appointed to remedy them. They shall examine the influence of confinement or punishment upon the morals of the prisoners. They may draw upon the Treasurer for such sums of money as may be necessary. They shall keep regular minutes of their proceedings, to be read at every quarterly meeting of the Society. This committee shall have the sole power of electing new members, but no member shall be admitted who has not been proposed at a previous meeting of the Society, nor shall an election for a member take place in less than one month after the time of his being proposed.

Article VI.—Every member who on his admission shall subscribe the constitution, and pay ten dollars, shall be a member for life, and every member who on his admission shall subscribe the constitution, and annually pay the sum of seven shillings and sixpence, shall be a member while he continues to contribute.8

Article VII.—Corresponding members may be elected, not resident in the city of Philadelphia, nor within ten miles thereof, who shall not be required to make pecuniary contributions to the funds of the Society, nor sign the constitution.

Article VIII.—The Society shall meet on the second Second-day, called Monday, in the months called January, April, July, and October, at such place as shall be agreed to by a majority of the Society.

Article IX.—No law or regulation shall contradict any part of the Constitution of the Society, nor shall any law or alteration of the Constitution be made without it be proposed at a previous meeting. All questions shall be decided, where there is a division, by a majority of votes; in those where the Society is equally divided, the presiding officer shall have a casting vote. 98

OFFICERS FOR 1849.

President—James J. Barclay. Vice-Presidents—Townsend Sharpless, Charles B. Trego. Treasurer—Edward Yarnall.
Secretaries and Committee of Correspondence
William Parker Foulke, Charles D. Cleveland.
Counsellors—Job R. Tyson, William A. Porter.

Acting Committee.

James J. Barclay, Townsend Sharpless, Charles B. Trego, Edward Yarnall, William Parker Foulke, Charles Dexter Cleveland, Job R. Tyson, William A. Porter, Frederick A. Packard, Jeremiah Hacker, William Shippen, John M. Whitall, Marmaduke Cooper Cope, Rene Guillou, Charles Ellis, Edward Townsend.

👉 Quarterly Meeting of the Society on the ninth day of April, inst.


NOTICE.

👉 Communications and orders for this work may be addressed “Editors of the Journal of Prison Discipline,” care of the publishers, No. 6, South Fifth Street, Philadelphia.

👉 “Officers of State, Inspectors, or Wardens of Penitentiaries, Keepers of Common Gaols, Houses of Correction, &c., Superintendents or Physicians of Insane Asylums, (whether public or private, and whether for paupers or pay-patients,) officers of Houses of Refuge, Police Magistrates, and others who may be in possession of, or have access to reports or other documents bearing on prison discipline, insanity, juvenile delinquency, police regulations, pauperism, &c., &c., will confer a particular favour by forwarding to the above office copies of such publications for use or notice in this Journal. All such attentions will be gratefully acknowledged, and cheerfully reciprocated.


“JOURNAL OF PRISON DISCIPLINE AND PHILANTHROPY,”
Published by the “Philadelphia Society for alleviating the Miseries of Public Prisons.”

DESIGN AND PLAN OF THE WORK.

The members of this venerable Institution, which has been mainly instrumental, in introducing the great reform in Prison Discipline that has distinguished the last half century, have long felt the need of such a medium of communication with the public as is now proposed. Their attention has of late been more especially aroused to the importance of the measure, from the deep interest which has been awakened in such reform; and from the misapprehension which prevails, as to the true principles and results of what is termed the “Pennsylvanian,” or “Separate System.”

Of the intrinsic usefulness of a Journal of this nature, it is believed but one opinion can prevail among the intelligent and humane. One of the most active and well-informed of those engaged in the reform of Prisons, has justly remarked, that “judgment is but the result of comparison.” All reasonable men, before deciding on a measure, will acknowledge the importance of becoming acquainted with the history and results of similar efforts. Hence the necessity felt by all civilized nations, of publishing and preserving public documents, reports, discussions, criticisms, &c. In America there is no adequate provision for the preservation of these, so far as they relate to prison reform; they are scattered among an accumulation of pamphlets on other subjects, are frequently destroyed, and are always difficult of access; and the labour which ought to furnish instruction for our future progress, and for posterity, becomes too often merely temporary in its utility.

At the present time a greatly enhanced importance is attached to a publication of this kind, as a medium of communication with foreign countries. Several of the governments of Europe are endeavouring to ascertain the best system of Prison Discipline, with a view to its adoption; and although the Society have no doubt which of the methods now in existence is the best, some Philanthropists of the Old World are yet undecided.

It is from a knowledge of these facts and from a belief that it is due to themselves and the cause of humanity, that the Society have been induced to undertake this publication.

The Journal will be devoted to the exposition and promulgation of correct views on Prison Discipline, Police systems, Asylums for the insane poor, Societies for the aid of discharged prisoners, and other reforms immediately connected with these subjects. It will also be rendered more interesting and instructive by the introduction of biographical sketches of celebrated Philanthropists, accompanied with portraits; and by plans and descriptions of the best methods of Prison construction. Such being the object, the Society cannot doubt that it will meet with cordial support from the friends of humanity, throughout the Old and New World.

TERMS.

This periodical is published quarterly; each number to contain at least 48 pages octavo. It will be delivered without charge to members of the Society; but to those who are not members, the price is $1 per aum, always in advance, or 25 cents a number.

FOOTNOTES:

1 Rev. Dr. Alexander’s letter to the Howard Society of New Jersey, July 1833.

2 This subject has lately engrossed the earnest consideration of the Managers of the Philadelphia Refuge, and there is an evident determination to effect important improvements in this respect.

3Case I.—The family whose total earnings consist of £2 2s per week, consist of the father and mother, who sleep in one bed; a married son and his wife who sleep in the second bed; a grown up daughter who, with two boys of twelve and fourteen years of age, sleep together on a bed on the floor; the whole family being in the same room.

Case II.—H. H. earns two shillings a day as a laborer—was brought up as a farmer, and had property to the amount of 2000 pounds, which he has dissipated—has a wife and five children—the eldest of whom is 13 years, the youngest 5 years; they have only one bed, upon which the parents sleep; the children sleeping on the floor as they best may.

Case III.—D. M., with his family, makes 30 shillings per week; his daughter, with a bastard child about two years old, a son about 16, another of 13, and a daughter of 10 years of age, making, with his wife, seven in all, sleep in the same room, with two beds.

Case IV.—J. G. has a father and mother who live with him; he and his wife sleep in one bed; his father and mother in another; his two grown up sisters in a third; his brother, a lad of 19, and a young man lodger, ‘who is courting one of his sisters,’ in a fourth: all in the same room. J. G. does not know, or will not tell, how much they all make, but thinks it ‘a good bit,’ as his wife and sisters and brother are at farming, himself on a fruit ground, and his father a laborer.”

Dr. Holland furnished Dr. Playfair with the following, in the case of one of his dispensary patients: “D. E. is a widower, with one sleeping apartment, in which sleeps his adult son and daughter. The latter has a bastard child which she affiliates on the father, he upon his son, and the neighbors upon both.”

4 Boston Correspondence of the New York Recorder, January 1849.

5 Opened May 15, 1848.

6 39 of dysentery in August and September.

7 Mrs. Fry’s views, when fairly presented and properly understood, were altogether in favor of separation, and can never be justly cited against it.

8 [Article VI. has been altered so as to make it require twenty dollars for a life contribution, and two dollars for an annual contribution.]

Transcriber’s Note:

Table on page 71, headers: Males., Females., and Totals., were shortened to read M., F., and Tot.

Obvious printer errors corrected silently.

Inconsistent spelling and hyphenation are as in the original.